CASCA chứng tỏ năng lực phục vụ toàn quốc với dự án lắp đặt cửa tự động KODO 1 cánh cho cửa hàng tiện lợi tại Mộc Châu (Sơn La), mang sự hiện đại và tiện nghi đến mọi nơi.
Xu hướng hiện đại hóa không chỉ diễn ra ở các đô thị lớn. Tại những điểm đến du lịch nổi tiếng như Mộc Châu, việc nâng cấp cơ sở vật chất để phục vụ khách hàng tốt hơn là một yếu tố cạnh tranh quan trọng. CASCA Việt Nam tự hào đã góp phần vào quá trình này bằng việc triển khai dự án lắp đặt cửa tự động cho cửa hàng tiện lợi tại thị trấn Mộc Châu, tỉnh Sơn La, khẳng định khả năng đáp ứng nhu cầu của khách hàng trên mọi miền tổ quốc.

Tổng quan dự án tại Mộc Châu, Sơn La
Dù ở khoảng cách địa lý xa, đội ngũ của CASCA vẫn đảm bảo thi công chuyên nghiệp và đúng tiến độ.
- Tên dự án: Lắp đặt cửa tự động cho Cửa hàng tiện lợi
- Địa chỉ: Thị trấn Mộc Châu, Sơn La.
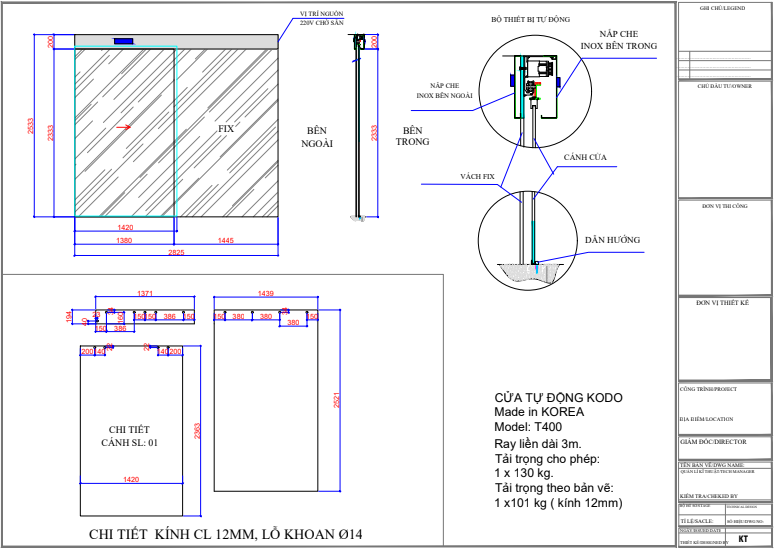
- Sản phẩm: Thương hiệu cửa tự động Hàn Quốc - KODO.
- Hạng mục thi công: Cửa trượt tự động 1 cánh, cánh kính cường lực.
- Phương thức vận hành: Mở cửa bằng mắt thần cảm biến.
- Thời gian hoàn thành: 25/04/2024
- Chế độ bảo hành: 24 tháng.

Giải pháp nhỏ gọn, hiệu quả cho mặt bằng kinh doanh
Với các cửa hàng có diện tích vừa phải, việc tối ưu hóa không gian là rất quan trọng. Hệ thống cửa kính trượt tự động 1 cánh là giải pháp hoàn hảo, giúp tiết kiệm diện tích mở cửa so với cửa mở quay truyền thống. Hệ thống mắt thần tự động nhận diện khách hàng từ xa, mở ra một lối vào thân thiện, tiện lợi, đặc biệt hữu ích khi khách đang mang nhiều đồ mua sắm.
Một lối vào tự động không chỉ nâng cao trải nghiệm khách hàng mà còn giúp cửa hàng giữ nhiệt độ ổn định, tiết kiệm năng lượng cho hệ thống điều hòa, làm mát.
Sản phẩm KODO, với mô tơ cửa tự động bền bỉ và bộ điều khiển thông minh, đảm bảo vận hành ổn định ngay cả với tần suất cao vào các mùa du lịch cao điểm, mang lại sự yên tâm cho chủ cửa hàng.

Video thực tế vận hành cửa tự động tại Mộc Châu
Video cho thấy sự vận hành trơn tru, nhanh nhạy của cửa KODO tại Mộc Châu, Sơn La.
CASCA - Vươn xa để phục vụ
Dự án tại Mộc Châu là lời khẳng định về năng lực và cam kết của CASCA: mang những sản phẩm cửa tự động chính hãng, chất lượng đến với khách hàng trên khắp Việt Nam. Với hệ thống văn phòng và đội ngũ kỹ thuật ở cả 3 miền, chúng tôi sẵn sàng khảo sát, tư vấn và thi công cho mọi công trình dù ở bất cứ đâu.
Khoảng cách địa lý không phải là rào cản khi bạn chọn CASCA. Chúng tôi mang giải pháp đến tận nơi cho bạn.
Quý khách hàng ở các tỉnh thành có nhu cầu báo giá cửa tự động và tư vấn giải pháp, đừng ngần ngại liên hệ với chúng tôi để nhận được sự phục vụ chuyên nghiệp nhất.
