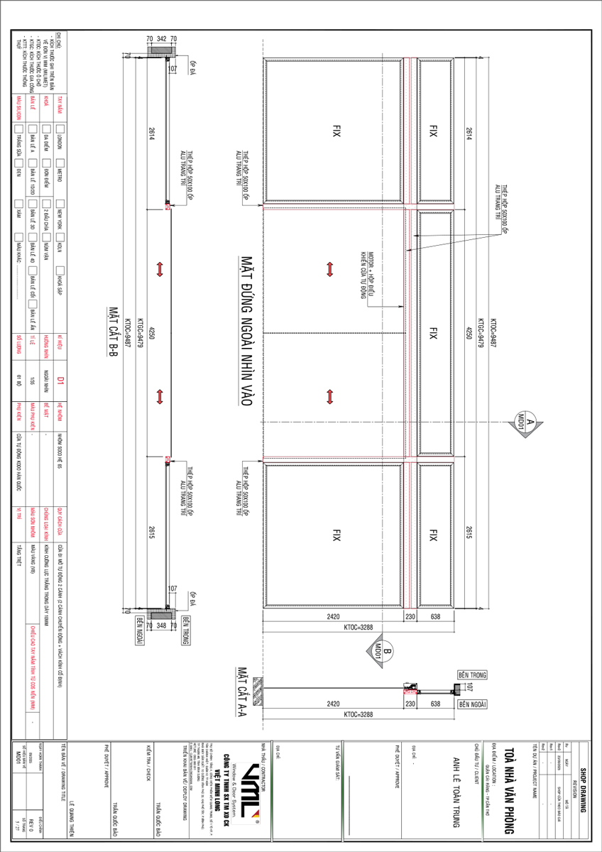
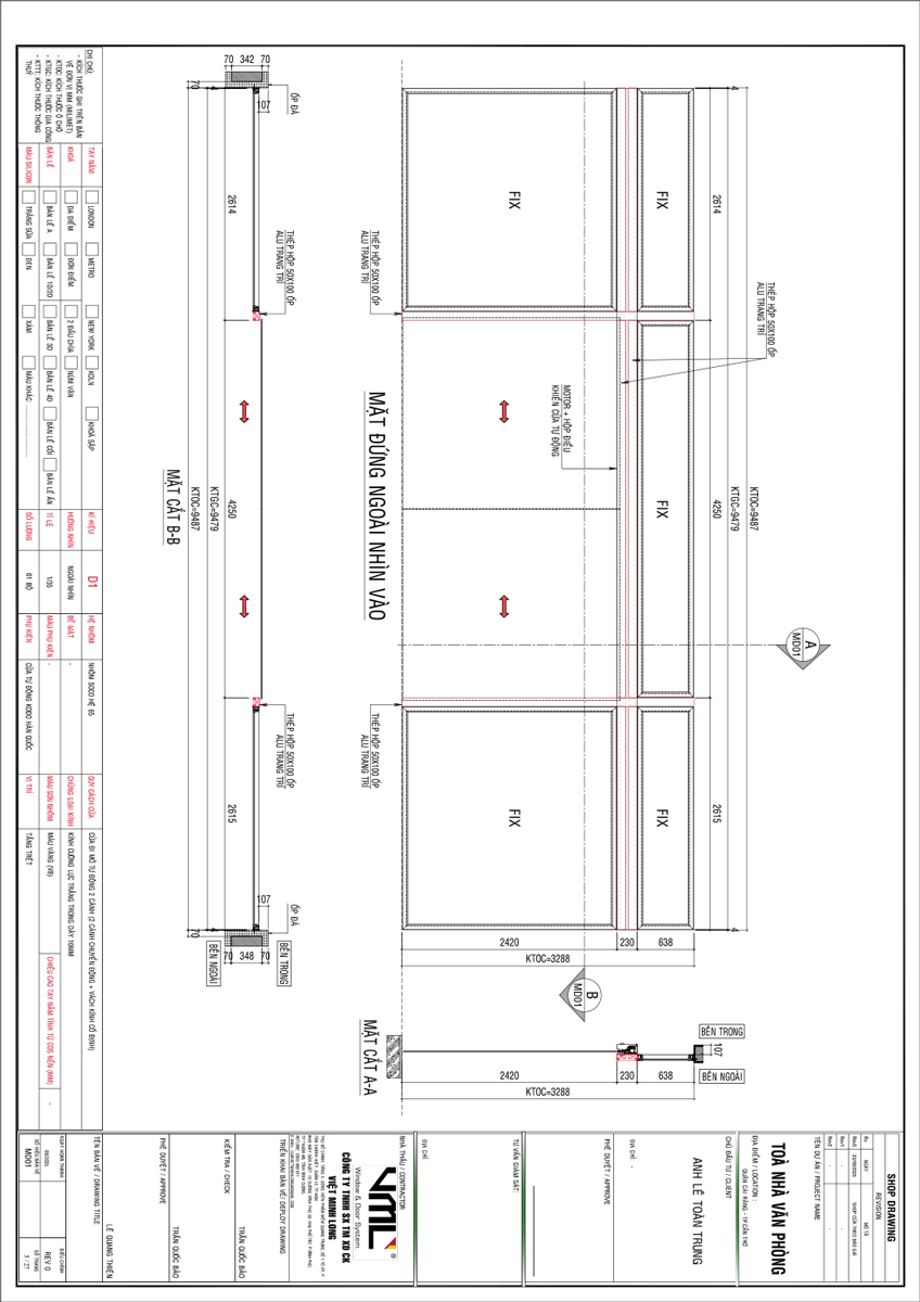
Dự án cửa trượt tự động KODO tại Văn phòng TLOUIS được triển khai nhằm mang đến một không gian đón tiếp hiện đại, vận hành hoàn toàn tự động, an toàn và tối ưu trải nghiệm người dùng. Hệ cửa sử dụng cánh kính trượt tự động 2 cánh, kết hợp vách kính cố định, kích thước hoàn thiện 9487 x 3288 mm, phù hợp mặt tiền rộng của tòa nhà văn phòng.
- Tên dự án: Văn phòng TLOUIS
- Địa chỉ: Lô 12 Đường A5, Khu Đô Thị Nam Long 2, Phường Cái Răng, Cần Thơ
- Ứng dụng: cửa trượt tự động văn phòng cho khu vực sảnh chính
- Loại cửa: cửa kính trượt tự động 2 cánh kèm vách kính cố định
- Sản phẩm sử dụng: cửa trượt tự động KODO
- Kích thước hoàn thiện: 9487 x 3288 mm
- Phương thức mở: mở cửa bằng mắt thần
- Ngày hoàn thành: 25/11/2025
- Thời gian bảo hành: 24 tháng

Giải pháp thiết kế và kỹ thuật hệ cửa kính trượt tự động KODO cho văn phòng
Khu vực sảnh chính được tổ chức với 2 cánh trượt tự động nằm ở trung tâm, hai bên là vách kính cố định và ô transom kính phía trên. Bố cục này giúp:
- Tập trung toàn bộ luồng di chuyển ra vào vào vùng giữa, nơi cảm biến hoạt động hiệu quả nhất.
- Giữ cho mặt tiền tòa nhà luôn thoáng, nhiều ánh sáng tự nhiên, tạo cảm giác rộng mở cho khách đến làm việc.
- Tối ưu khả năng chịu lực cho hệ cửa kính trượt tự động, vì khẩu độ mở hữu dụng nhỏ hơn nhiều so với chiều ngang toàn bộ mặt tiền.
Từ nhu cầu tạo ra một hệ cửa vận hành êm, bền, thẩm mỹ cao và phù hợp tần suất sử dụng lớn của môi trường văn phòng, CASCA triển khai cấu hình hệ kính và thiết bị vận hành như sau:
- Hệ cửa được thiết kế gồm hai cánh kính trượt vận hành đối xứng, kết hợp hai vách kính cố định hai bên giúp gia tăng độ thoáng sáng và tạo điểm tựa vững chắc cho toàn bộ hệ thống.
- Phía trên là ô transom kính góp phần hoàn thiện chiều cao thi công và che gọn toàn bộ ray – motor để mặt tiền luôn tinh gọn, hiện đại. Kính cường lực 10–12 mm được sử dụng nhằm đảm bảo độ bền, khả năng chịu lực và an toàn khi có sự cố, đồng thời mang lại tính thẩm mỹ sang trọng cho không gian.
- Phần thiết bị vận hành của cửa tự động KODO được bố trí đồng bộ, bao gồm hệ ray nhôm hợp kim cứng vững, động cơ DC vận hành êm và ổn định, bộ điều khiển trung tâm cho phép điều chỉnh tốc độ – lực đóng – thời gian giữ cửa mở, và cụm treo cánh kết hợp dây curoa răng giúp truyền động mượt mà.
- Hệ cảm biến mắt thần KODO M204 HD nhận diện chuyển động nhạy, mở cửa đúng thời điểm và đảm bảo người dùng luôn di chuyển thuận tiện, liền mạch trong không gian văn phòng nhộn nhịp.

Lợi ích khi sử dụng cửa trượt tự động KODO trong không gian văn phòng hiện đại
Việc ứng dụng cửa trượt tự động không chỉ phục vụ nhu cầu đóng mở tiện lợi, mà còn nâng cao chất lượng vận hành, hình ảnh và trải nghiệm tổng thể của một tòa nhà văn phòng. Những lợi ích dưới đây cho thấy vì sao hệ cửa trượt tự động KODO phù hợp đặc biệt với môi trường làm việc hiện đại.
Nâng tầm hình ảnh văn phòng với cửa kính trượt tự động KODO
Việc trang bị cửa kính trượt tự động KODO giúp khu vực sảnh văn phòng trở nên hiện đại, sang trọng và đồng bộ hơn. Hệ cửa vận hành êm, không tạo tiếng ồn, không chiếm diện tích mở rộng như cửa bản lề truyền thống, góp phần định hình phong cách chuyên nghiệp ngay từ điểm chạm đầu tiên của khách hàng và đối tác.
Tăng trải nghiệm sử dụng cho nhân sự và khách hàng
Trong môi trường văn phòng, nhân sự thường xuyên mang theo laptop, tài liệu hoặc vật dụng cá nhân. Cửa trượt tự động KODO cho phép người dùng ra vào hoàn toàn rảnh tay, không cần kéo – đẩy, đặc biệt thuận tiện trong giờ cao điểm. Luồng di chuyển trở nên trơn tru, giảm ùn ứ và nâng cao tổng thể trải nghiệm của người sử dụng.


Gia tăng an toàn vận hành tòa nhà
Hệ cửa tự động KODO được thiết kế để đảm bảo an toàn:
- Cảm biến có khả năng phát hiện chuyển động và vật cản, hạn chế nguy cơ cửa đóng vào người.
- Bộ điều khiển cho phép cài đặt lực đóng phù hợp, tránh gây nguy hiểm với trẻ nhỏ hoặc người cao tuổi.
- Có thể bổ sung thêm cảm biến an toàn ở phía mép cánh nếu tòa nhà có yêu cầu cao hơn về tiêu chuẩn an toàn.
Tiết kiệm năng lượng hiệu quả với cửa kính trượt tự động KODO
Nhờ cơ chế mở khi có người – đóng khi không sử dụng, cửa kính trượt tự động KODO giúp:
- Giảm lượng khí lạnh thất thoát ra ngoài, nhất là ở khu vực sảnh – nơi cửa mở ra ngoài trời.
- Giữ nhiệt độ trong văn phòng ổn định hơn, giảm tải cho hệ thống điều hòa trung tâm.
- Góp phần tối ưu chi phí vận hành tòa nhà trong dài hạn.


Thuận tiện trong bảo trì và nâng cấp
Cấu trúc thiết bị của cửa trượt tự động KODO cho phép:
- Tháo lắp linh hoạt khi cần bảo trì, thay thế phụ kiện.
- Bổ sung thêm thiết bị điều khiển, cảm biến, module thông minh mà không phải thay toàn bộ hệ thống.
- Nâng cấp dần theo nhu cầu phát triển của tòa nhà (tăng mức độ kiểm soát, tích hợp hệ thống quản lý ra vào, v.v.).
"Sau khi lắp đặt cửa trượt tự động KODO, khu vực sảnh văn phòng trở nên thông thoáng, hiện đại hơn rất nhiều. Nhân sự và khách hàng ra vào thuận tiện, nhất là trong những khung giờ cao điểm. Hệ thống vận hành êm, ổn định và chúng tôi đánh giá cao sự hỗ trợ kỹ thuật nhanh chóng từ CASCA Việt Nam trong suốt quá trình triển khai và bàn giao."
– Đại diện quản lý Văn phòng TLOUIS
Lý do doanh nghiệp nên chọn CASCA Việt Nam khi lắp đặt cửa trượt tự động KODO
Việc lựa chọn đúng đơn vị cung cấp và lắp đặt cửa tự động quyết định trực tiếp đến tuổi thọ, độ ổn định và mức độ an toàn của hệ thống. CASCA Việt Nam không chỉ cung cấp thiết bị mà mang đến một giải pháp tổng thể, từ tư vấn – thiết kế – thi công – bảo hành, đảm bảo tòa nhà vận hành thuận lợi trong suốt thời gian dài.
- Sản phẩm chính hãng, đồng bộ từ nhà sản xuất: CASCA Việt Nam là đơn vị nhập khẩu và phân phối chính hãng cửa tự động KODO, cung cấp trọn bộ thiết bị từ ray, motor, bo mạch, cảm biến tới phụ kiện. Việc đồng bộ thiết bị giúp hệ thống vận hành ổn định, hạn chế lỗi phát sinh do trộn nhiều thương hiệu khác nhau.
- Giải pháp thiết kế phù hợp từng mặt bằng công trình: CASCA không chỉ bán bộ cửa trượt tự động mà tư vấn giải pháp tổng thể dựa trên mặt bằng kiến trúc, nhu cầu sử dụng, tần suất vận hành. Nhờ đó, phương án cửa luôn hài hòa giữa thẩm mỹ – công năng – chi phí đầu tư.
- Đội ngũ kỹ thuật chuyên môn cao, quy trình thi công chuẩn: Đội ngũ kỹ sư, kỹ thuật viên được đào tạo bài bản về cửa tự động KODO, tuân thủ quy trình khảo sát, bóc tách, lắp đặt, căn chỉnh và nghiệm thu rõ ràng. Điều này đảm bảo hệ cửa sau khi bàn giao hoạt động êm, bền trong thời gian dài.
- Dịch vụ bảo hành – bảo trì nhanh chóng và rõ ràng: Hệ thống cửa trượt tự động KODO tại Văn phòng TLOUIS được bảo hành 24 tháng cho motor, bo mạch, ray, cụm treo cánh và phụ kiện. CASCA có đội kỹ thuật túc trực hỗ trợ từ xa và đến tận nơi khi cần, giúp khách hàng yên tâm trong suốt quá trình sử dụng.
- Chính sách hỗ trợ nâng cấp, mở rộng linh hoạt: Khi tòa nhà có nhu cầu nâng cấp hệ thống ra vào, CASCA sẵn sàng tư vấn phương án tích hợp thêm điều khiển từ xa, Wifi CASCA, hệ thống kiểm soát ra vào hay giải pháp tòa nhà thông minh, tận dụng tối đa hệ cửa đã lắp đặt để tối ưu chi phí.

Quý khách hàng có nhu cầu tư vấn hoặc triển khai hệ thống cửa kính trượt tự động cho văn phòng, showroom hoặc tòa nhà vui lòng liên hệ:
- Văn phòng Hà Nội (VPHN): U3-L44, KĐT Đô Nghĩa, Yên Nghĩa, Hà Đông - Hotline: 0965.911.566 / 0964.776.883
- Văn phòng TP.HCM (VPSG): 2 Lê Thị Nho, Trung Mỹ Tây, Quận 12 - Hotline: 0903.786.883 / 0937.226.883
- Văn phòng Đà Nẵng (VPĐN): 31 Trừ Văn Thố, Hòa Thọ Đông, Cẩm Lệ - Hotline: 0964.946.883
- Email: cascavietnam@gmail.com
- Website: casca.vn
CASCA Việt Nam cam kết mang đến những giải pháp cửa tự động văn phòngchất lượng cao, vận hành bền bỉ và phù hợp nhất cho từng mô hình công trình.
