Dự án lắp đặt cửa kính trượt tự động KODO tại ngõ 21 Lê Văn Lương, Thanh Xuân, Hà Nội là một trong những công trình dân dụng nổi bật được thực hiện bởi CASCA Việt Nam trong năm 2024. Hệ thống cửa 2 cánh kính cường lực, điều khiển bằng cảm biến mắt thần tự động, mang đến sự tiện nghi, sang trọng và an toàn tuyệt đối cho ngôi nhà.
Phân tích hiện trạng và yêu cầu thiết kế
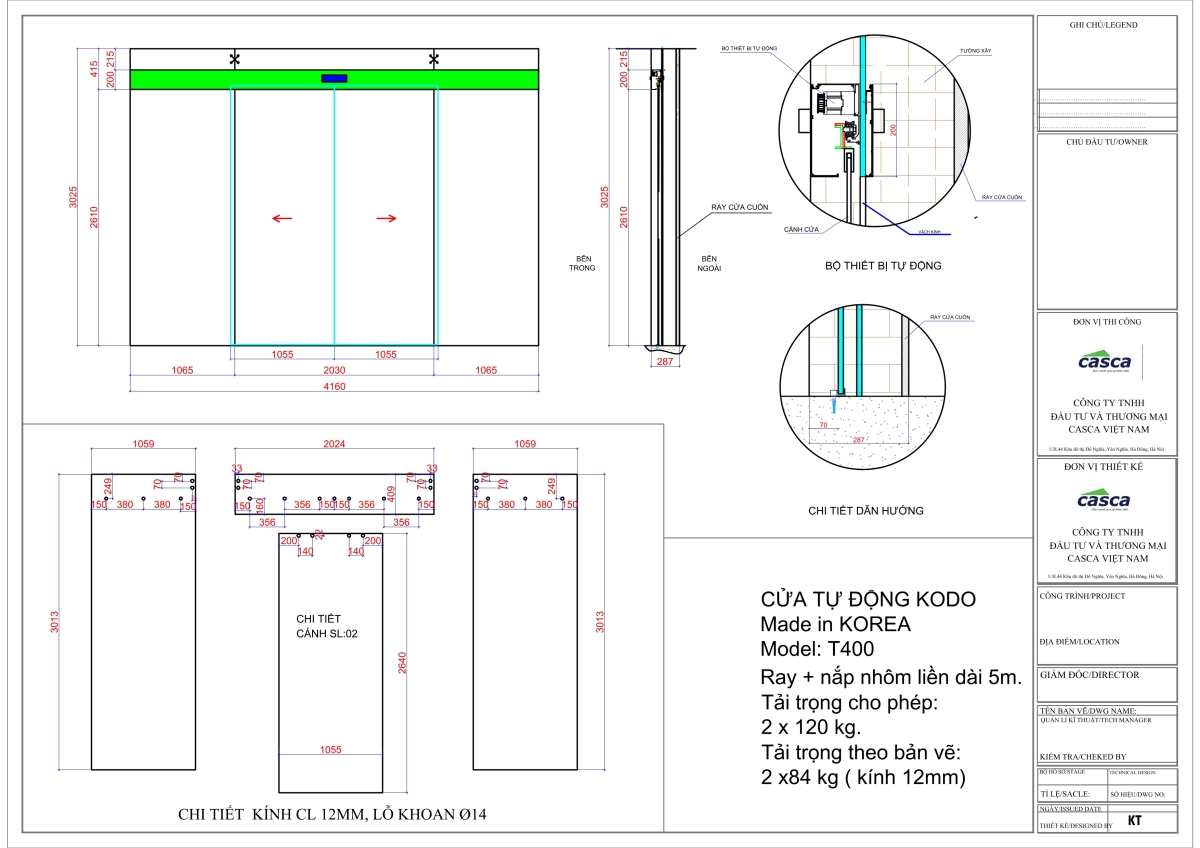
Không gian sảnh chính của ngôi nhà có diện tích cửa rộng 2765 mm x cao 2590 mm, được thiết kế theo phong cách hiện đại, ưu tiên vật liệu kính trong suốt và ánh sáng tự nhiên. Gia chủ yêu cầu cửa phải vận hành êm, đóng mở nhẹ, không gây tiếng ồn, đồng thời tăng tính an toàn cho người lớn tuổi và trẻ nhỏ.
Ngoài ra, khu vực lắp đặt chịu ảnh hưởng trực tiếp từ ánh sáng mặt trời và bụi đường, vì vậy giải pháp được chọn cần có độ kín khí tốt, độ bền cao và khả năng cách âm vượt trội.

Giải pháp kỹ thuật chuyên biệt từ CASCA Việt Nam
Sau khi khảo sát và phân tích yêu cầu, CASCA đã lựa chọn cửa kính tự động – dòng sản phẩm được thiết kế riêng cho không gian dân dụng cao cấp.
Cấu hình hệ thống gồm:
- Cánh kính cường lực 12mm: trong suốt, chịu lực cao, cạnh mài an toàn và dễ vệ sinh.
- Khung nhôm KODO cao cấp: phủ sơn tĩnh điện chống ăn mòn, giữ màu bền đẹp theo thời gian.
- Ray trượt nhôm nguyên khối: chống rung, giảm ma sát, hoạt động ổn định ngay cả trong môi trường bụi.
- Động cơ KODO 100W không chổi than: tiết kiệm điện, vận hành êm, tuổi thọ cao.
- Cảm biến mắt thần hồng ngoại kép: phát hiện chuyển động chính xác trong phạm vi 3m, phản ứng nhanh và an toàn tuyệt đối.
- Bộ điều khiển trung tâm thông minh: cho phép tùy chỉnh tốc độ đóng/mở, độ nhạy cảm biến và thời gian giữ cửa mở.
Toàn bộ hệ thống được tối ưu để hoạt động ổn định trong môi trường dân dụng, vừa đảm bảo hiệu suất kỹ thuật vừa đạt yêu cầu thẩm mỹ kiến trúc.

Quy trình thi công – Kiểm định chuẩn kỹ thuật
CASCA triển khai lắp đặt theo quy trình kỹ thuật đạt chuẩn ISO, chú trọng từng công đoạn để đảm bảo độ chính xác tuyệt đối:
- Khảo sát & đo đạc hiện trạng: Đội ngũ kỹ sư CASCA tiến hành đo đạc chính xác kích thước khung bao, xác định điểm chịu lực, hướng gió và hướng mở cửa tối ưu. Các yếu tố như vị trí cảm biến, góc mở và độ cao lắp đặt cũng được mô phỏng bằng phần mềm CAD để đảm bảo tính tương thích với không gian thực tế.
- Thi công lắp đặt khung & ray trượt: Khung nhôm và ray trượt được căn chỉnh bằng laser để đảm bảo độ vuông góc tuyệt đối. Mỗi điểm liên kết giữa khung – ray – tường đều được cố định bằng bu lông nở thép chống rung, giúp hệ thống vận hành ổn định lâu dài.
- Lắp đặt motor & bộ điều khiển trung tâm: Motor được gắn trên giá đỡ thép chắc chắn, kiểm tra mô-men quay và độ căng dây đai trước khi kết nối với bộ điều khiển trung tâm. Bộ điều khiển được lập trình theo chu kỳ đóng/mở tùy biến, đảm bảo hoạt động êm và đồng bộ với cảm biến mắt thần.
- Kiểm tra vận hành – đánh giá an toàn: Thực hiện chạy thử hơn 300 chu kỳ liên tục để kiểm tra độ ổn định, tiếng ồn, tốc độ phản hồi của cảm biến và khả năng dừng khẩn khi gặp vật cản. Các thông số được ghi lại và đối chiếu với tiêu chuẩn KODO để bảo đảm đạt chuẩn kỹ thuật.
- Nghiệm thu & bàn giao: Sau khi hoàn tất lắp đặt, CASCA tiến hành đo kiểm độ kín, kiểm tra điện áp nguồn, hiệu chỉnh tốc độ cuối cùng và vệ sinh tổng thể. Chủ nhà được hướng dẫn vận hành chi tiết, kèm lịch bảo trì định kỳ và tài liệu kỹ thuật hoàn chỉnh.
Kết quả cho thấy hệ thống vận hành êm, đóng mở chính xác và tự động dừng khi phát hiện vật cản, đạt tiêu chuẩn an toàn cao nhất cho cửa dân dụng.

Hiệu quả thực tế và giá trị ứng dụng
Sau khi bàn giao, chủ nhà đánh giá cao độ nhạy cảm biến, độ êm của motor và tính thẩm mỹ tinh tế của bộ cửa. Bên cạnh đó, cửa còn giúp cải thiện môi trường sống:
- Giảm tiếng ồn và bụi bẩn: hệ thống cửa tự động KODO sử dụng gioăng kín khít và kính cường lực dày, giúp hạn chế tối đa bụi mịn và tiếng ồn từ bên ngoài, tạo không gian sinh hoạt yên tĩnh hơn 30% so với cửa trượt thông thường.
- Tối ưu ánh sáng tự nhiên: cánh kính trong suốt kết hợp khung nhôm mảnh giúp ánh sáng lan tỏa đều khắp phòng, mang lại cảm giác rộng rãi và giảm nhu cầu chiếu sáng nhân tạo vào ban ngày.
- Tăng độ an toàn và tiện lợi: cảm biến mắt thần hoạt động chính xác, tự động phát hiện chuyển động và dừng lại nếu có vật cản, đảm bảo an toàn tuyệt đối cho trẻ nhỏ và người cao tuổi.
- Tiết kiệm năng lượng: khả năng đóng kín nhanh giúp duy trì nhiệt độ trong nhà ổn định, giảm tải cho hệ thống điều hòa và tiết kiệm điện năng khoảng 15–20% mỗi tháng.
Dự án tại Lê Văn Lương khẳng định xu hướng áp dụng công nghệ tự động hóa vào không gian nhà ở, nơi tiện nghi và an toàn song hành cùng thẩm mỹ.
Giá trị khác biệt và dịch vụ hậu mãi của CASCA Việt Nam
Không chỉ dừng lại ở việc lắp đặt, CASCA Việt Nam đồng hành cùng khách hàng trong suốt vòng đời sản phẩm, đảm bảo hệ thống luôn hoạt động bền bỉ:
- Bảo hành 24 tháng toàn quốc: CASCA đảm bảo mọi sự cố kỹ thuật được xử lý trong vòng 24 giờ, thay thế linh kiện miễn phí trong phạm vi bảo hành. Mỗi công trình đều được cấp sổ bảo hành điện tử giúp khách hàng dễ dàng tra cứu lịch sử bảo dưỡng.
- Bảo trì định kỳ miễn phí 6 tháng/lần: Trong năm đầu tiên, đội kỹ sư sẽ đến kiểm tra hệ thống theo lịch hẹn để cân chỉnh motor, vệ sinh cảm biến, kiểm tra dây dẫn và cập nhật phần mềm điều khiển nhằm duy trì hiệu suất tối đa.
- Kho linh kiện KODO chính hãng sẵn có tại ba miền: CASCA xây dựng hệ thống kho tại Hà Nội, Đà Nẵng và TP.HCM, luôn dự trữ motor, cảm biến, ray trượt và bo mạch điều khiển KODO để thay thế ngay khi cần.
- Đội ngũ kỹ sư chuyên sâu hỗ trợ kỹ thuật 24/7: Đội ngũ kỹ thuật được đào tạo chuyên sâu về cơ điện tử và tự động hóa, sẵn sàng tư vấn, xử lý sự cố từ xa hoặc trực tiếp tại công trình, đảm bảo hệ thống hoạt động liên tục và ổn định.
CASCA – thương hiệu tiên phong trong lĩnh vực cửa tự động, mang đến giải pháp an toàn, hiện đại và thẩm mỹ cho không gian sống Việt.

Liên hệ ngay với CASCA Việt Nam để được tư vấn và trải nghiệm hệ thống cửa tự động thông minh KODO, giúp ngôi nhà của bạn trở nên sang trọng, tiện nghi và an toàn hơn bao giờ hết.
CÔNG TY TNHH ĐẦU TƯ VÀ THƯƠNG MẠI CASCA VIỆT NAM
- VPHN: U3-L44, KĐT Đô Nghĩa, Yên Nghĩa, Hà Đông – Hotline: 0965.911.566 / 0964.776.883
- VPSG: 2 Lê Thị Nho, Trung Mỹ Tây, Quận 12 – Hotline: 0903.786.883 / 0937.226.883
- VPĐN: 31 Trừ Văn Thố, Hòa Thọ Đông, Cẩm Lệ – Hotline: 0964.946.883
- Email: cascavietnam@gmail.com
- Website: https://casca.vn
