Vừa qua, CASCA Việt Nam vinh dự được lựa chọn là đơn vị nhà thầu chính thức cho hạng mục thi công hệ thống cửa sảnh ra vào tại Chung cư Vista Verder. Đây là khu căn hộ cao cấp đòi hỏi tiêu chuẩn khắt khe về thẩm mỹ, độ ồn thấp và tính năng an toàn tuyệt đối cho cư dân.

Tổng Quan Dự Án Lắp Đặt Cửa Tự Động Tại Chung Cư Vista Verder
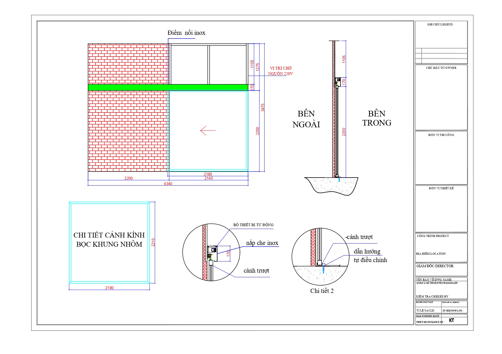
Sau quá trình khảo sát thực tế sảnh tòa nhà, chúng tôi đã đưa ra giải pháp lắp đặt cửa tự động KODO nhập khẩu Hàn Quốc với cấu hình chi tiết như sau:
- Chủ đầu tư dự án: Ban quản lý Chung cư Vista Verder
- Hạng mục thi công: Tư vấn giải pháp, cung cấp và lắp đặt trọn gói cửa trượt tự động sảnh chính
- Model thiết bị: Cửa tự động KODO (Dòng T400/T600 chuyên dụng cho tải trọng lớn)
- Quy cách thiết kế: Cánh kính cường lực an toàn kết hợp hệ khung nhôm bao viền gia cường
- Hệ thống phụ trợ: Ray trượt hợp kim nhôm đúc, ốp nắp kỹ thuật Inox 304 xước mờ sang trọng
- Đơn vị thực hiện: CÔNG TY TNHH ĐẦU TƯ VÀ THƯƠNG MẠI CASCA VIỆT NAM

Phân Tích Giải Pháp Kỹ Thuật Và Thiết Kế Thi Công
Đối với một dự án có mật độ cư dân đi lại thường xuyên như Vista Verder, yêu cầu về độ bền cơ khí và khả năng vận hành êm ái được đặt lên hàng đầu. Đội ngũ kỹ sư CASCA đã áp dụng những công nghệ tiên tiến nhất vào công trình này.
Ưu Điểm Vượt Trội Của Cánh Kính Khung Nhôm
Khác với các dòng cửa kính trần thông thường, việc sử dụng hệ thống khung nhôm bao cánh mang lại sự vững chãi vượt trội.
- Gia tăng độ bền: Khung nhôm đóng vai trò như bộ xương sống, bảo vệ các cạnh kính yếu điểm khỏi va đập vật lý, giảm thiểu tối đa nguy cơ nứt vỡ.
- Vận hành êm ái: Trọng lượng cánh được phân bổ đều lên hệ thống con lăn và ray trượt, giúp motor cửa tự động hoạt động mượt mà, không gây tiếng ồn ảnh hưởng đến không gian yên tĩnh của sảnh chờ.

Sự Tinh Tế Từ Hệ Thống Nắp Che Inox
Để phù hợp với kiến trúc hiện đại của tòa nhà, phần hộp kỹ thuật (technical box) chứa động cơ và bộ điều khiển (Controller) được bọc hoàn toàn bằng Inox 304.
- Thẩm mỹ cao: Ánh kim của Inox tạo cảm giác sang trọng, sạch sẽ và đẳng cấp cho mặt tiền sảnh.
- Bảo vệ toàn diện: Lớp vỏ này chống lại bụi bẩn, côn trùng và các tác nhân oxy hóa từ môi trường, giúp tăng tuổi thọ cho thiết bị bên trong.
Công Nghệ Cảm Biến An Toàn Kép
An toàn cho người già và trẻ nhỏ là ưu tiên số một tại các khu chung cư. Hệ thống được trang bị bộ đôi mắt thần cảm biến (Sensor) độ nhạy cao và cảm biến an toàn (Safety Beam). Cửa sẽ tự động nhận diện người từ xa để mở ra và lập tức đảo chiều hoặc dừng lại nếu phát hiện vật cản trong hành trình đóng, đảm bảo an toàn tuyệt đối cho cư dân Vista Verder.

Lợi Ích Thiết Thực Khi Ứng Dụng Cửa Tự Động KODO
Việc nâng cấp hệ thống cửa ra vào bằng thiết bị tự động mang lại những giá trị hữu hình cho ban quản lý và cư dân.
Tối Ưu Hóa Năng Lượng Cho Tòa Nhà
Sảnh chung cư thường là nơi thất thoát nhiệt lớn nhất do tần suất ra vào liên tục. Cửa trượt tự động với tốc độ đóng mở nhanh và cơ chế kín khít giúp giữ nhiệt độ điều hòa ổn định tại sảnh lobby. Điều này giúp Chung cư Vista Verder tiết kiệm đáng kể chi phí điện năng vận hành hàng tháng.
Nâng Tầm Đẳng Cấp Không Gian Sống
Cánh cửa là điểm chạm đầu tiên khi trở về nhà. Một hệ thống cửa tự động hiện đại, mở ra nhẹ nhàng chào đón cư dân sẽ tạo cảm giác tiện nghi, đẳng cấp 5 sao. Nó không chỉ phục vụ nhu cầu đi lại mà còn là điểm nhấn kiến trúc, nâng cao giá trị hình ảnh của toàn bộ dự án.
Kiểm Soát Ra Vào Thông Minh
Hệ thống điều khiển của cửa tự động KODO được thiết kế mở, sẵn sàng tích hợp với các giải pháp an ninh tòa nhà. Khi cần thiết, ban quản lý có thể kết nối cửa với đầu đọc thẻ từ cư dân, nhận diện khuôn mặt (Face ID) hoặc vân tay để kiểm soát người lạ ra vào, đảm bảo an ninh tối đa cho khu căn hộ.
Giới Thiệu Về Đơn Vị Thi Công CASCA Việt Nam
CASCA Việt Nam tự hào là đối tác tin cậy của nhiều dự án chung cư, tòa nhà văn phòng và nhà máy trên toàn quốc. Chúng tôi chinh phục khách hàng bằng sự chuyên nghiệp và cam kết chất lượng vững bền:
- Sản phẩm chính hãng 100%: Cam kết cung cấp thiết bị cửa tự động Hàn Quốc, Nhật Bản (KODO, Teraoka...) nhập khẩu nguyên bộ, có đầy đủ CO/CQ chứng minh nguồn gốc.
- Kỹ thuật chuyên sâu: Đội ngũ kỹ sư được đào tạo bài bản, thi công chuẩn xác từng chi tiết, đảm bảo tính thẩm mỹ và độ an toàn cao nhất theo tiêu chuẩn quốc tế.
- Dịch vụ bảo hành tốc độ: Hệ thống trạm bảo hành trải dài Bắc - Trung - Nam, cam kết có mặt xử lý sự cố nhanh chóng, hỗ trợ kỹ thuật 24/7.
- Chi phí tối ưu: Là nhà nhập khẩu và phân phối trực tiếp, CASCA mang đến mức giá cạnh tranh nhất thị trường cùng nhiều chính sách ưu đãi cho chủ đầu tư.
Thông Tin Liên Hệ Tư Vấn Và Lắp Đặt
Quý khách hàng, Ban quản lý tòa nhà có nhu cầu tư vấn, thiết kế và thi công giải pháp cửa tự động, vui lòng liên hệ với CASCA Việt Nam để nhận báo giá tốt nhất:
CÔNG TY TNHH ĐẦU TƯ VÀ THƯƠNG MẠI CASCA VIỆT NAM
- Chi nhánh Hà Nội: U3-L44, KĐT Đô Nghĩa, Yên Nghĩa, Hà Đông - Hotline: 0965911566 / 0964776883
- Chi nhánh TP. Hồ Chí Minh: 2 Lê Thị Nho, Trung Mỹ Tây, Quận 12 - Hotline: 0903786883 / 0937226883
- Chi nhánh Đà Nẵng: 31 Trừ Văn Thố, Hòa Thọ Đông, Cẩm Lệ - Hotline: 0964946883
- Email: cascavietnam@gmail.com
- Website: https://casca.vn/
