Khi nhắc đến những không gian thương mại hiện đại, cửa tự động không chỉ là thiết bị hỗ trợ ra vào mà còn thể hiện sự chuyên nghiệp, tiện nghi và đẳng cấp của công trình. Trong xu hướng hiện nay, các siêu thị, trung tâm thương mại hay tòa nhà đều ưu tiên lựa chọn cửa kính trượt tự động để mang lại trải nghiệm thoải mái, an toàn và tiết kiệm năng lượng. Trong bối cảnh đó, CASCA Việt Nam tự hào là đơn vị thi công dự án cửa trượt tự động KODO cho Siêu Thị Vân KOREA – công trình tiêu biểu cho chất lượng và kỹ thuật chuẩn Hàn Quốc.

Cửa Tự Động KODO – Điểm Nhấn Hiện Đại Cho Siêu Thị Vân KOREA
Siêu Thị Vân KOREA tọa lạc tại 37 Yên Sơn, Chúc Sơn, Hà Nội là một trong những không gian mua sắm được thiết kế theo phong cách hiện đại. Để mang lại trải nghiệm tiện nghi và chuyên nghiệp hơn cho khách hàng, CASCA Việt Nam đã triển khai lắp đặt hệ thống cửa trượt tự động KODO – thương hiệu đến từ Hàn Quốc, nổi tiếng về độ bền, độ êm và tính thẩm mỹ vượt trội.
Công trình được hoàn thiện vào ngày 27/12/2023, với bảo hành chính hãng 24 tháng. Cửa hoạt động hoàn toàn tự động thông qua mắt thần cảm biến KODO M204 HD, giúp tối ưu hóa trải nghiệm ra vào và đảm bảo an toàn tuyệt đối cho khách hàng.

Giải Pháp Thi Công Và Cấu Tạo Kỹ Thuật Hiện Đại
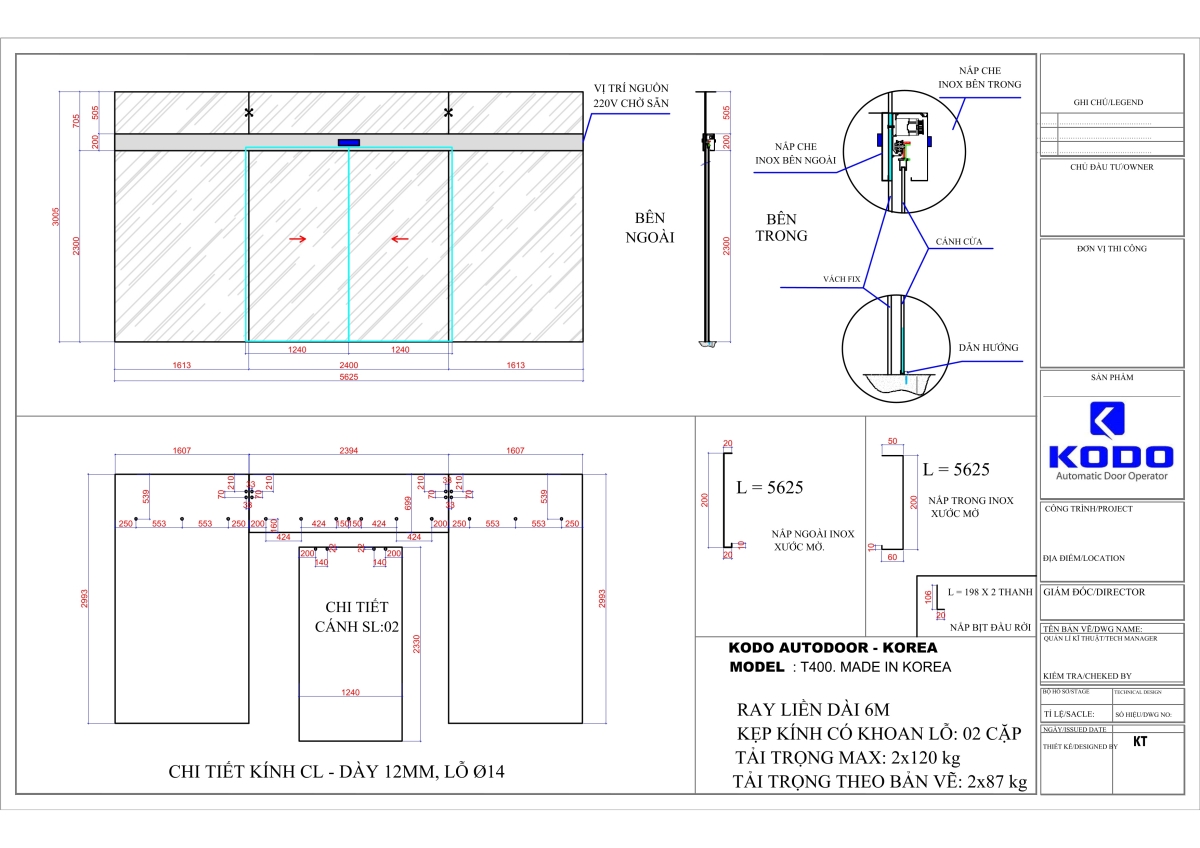
Cửa kính trượt tự động KODO tại Siêu Thị Vân KOREA được CASCA Việt Nam thi công với sự kết hợp hoàn hảo giữa thiết kế thẩm mỹ và công nghệ tiên tiến. Hệ thống KODO sở hữu cấu trúc 2 cánh trượt đối xứng, vận hành bằng bo mạch điều khiển KODO T400 thế hệ mới và mắt thần cảm biến hồng ngoại KODO M204 HD, giúp cửa mở – đóng mượt mà, chính xác và an toàn.
Với ray nhôm liền khối dài 6m cùng nắp inox xước mờ tạo điểm nhấn sang trọng, cửa được thi công với độ chính xác cao dựa trên bản vẽ kỹ thuật KODO T400. Hệ thống sử dụng kính cường lực dày 12mm, khoan lỗ Ø14 đúng tiêu chuẩn, cố định bằng kẹp kính khoan lỗ 2 cặp. Toàn bộ cấu trúc được thiết kế theo bản vẽ BV CTD CTY Thanh Kha – Model KODO Autodoor Korea, với tải trọng vận hành thực tế 2x87kg, tối đa lên đến 2x120kg, phù hợp cho không gian có mật độ di chuyển cao.
Phần vỏ ray và nắp che bằng inox xước mờ được lắp đặt bên trong và bên ngoài, tăng tính thẩm mỹ đồng thời bảo vệ hệ thống khỏi bụi và va chạm. Nguồn điện 220V được bố trí tại vị trí chờ sẵn, kết nối với bo mạch điều khiển trung tâm, mắt thần cảm biến KODO M204 HD và bộ truyền động motor encoder theo sơ đồ đấu nối chuẩn CASCA Việt Nam. Các chi tiết như vị trí cắm dây nguồn, cảm biến an toàn, dây tín hiệu đều được thi công đúng hướng dẫn từ bản vẽ kỹ thuật, đảm bảo khả năng vận hành ổn định, tiết kiệm điện năng và an toàn tuyệt đối.

Hiệu Quả Và Giá Trị Mang Lại Cho Siêu Thị
Sau khi lắp đặt, cửa trượt tự động KODO không chỉ nâng tầm diện mạo của Siêu Thị Vân KOREA mà còn mang lại nhiều giá trị vượt trội về vận hành, thẩm mỹ và kinh tế:
- Tối ưu trải nghiệm khách hàng: Cảm biến mắt thần nhận diện chuyển động chính xác, giúp cửa mở nhẹ nhàng ngay khi khách đến gần, tạo cảm giác sang trọng và chuyên nghiệp ngay từ lối vào.
- Tiết kiệm năng lượng và kiểm soát môi trường: Cửa tự động đóng kín nhanh chóng sau mỗi lượt di chuyển, hạn chế thất thoát hơi lạnh từ điều hòa và bụi bẩn từ bên ngoài, góp phần giảm đáng kể chi phí điện năng hàng tháng cho siêu thị.
- Tăng tính thẩm mỹ và nhận diện thương hiệu: Thiết kế kính trong suốt kết hợp với khung inox xước mờ giúp không gian trở nên hiện đại, sáng sủa và dễ quan sát.
- An toàn tuyệt đối cho người sử dụng: Cảm biến chống kẹt và bo mạch điều khiển thông minh giúp cửa tự động dừng lại khi phát hiện vật cản, đảm bảo an toàn tuyệt đối cho mọi đối tượng người dùng.
- Khả năng mở rộng và tích hợp linh hoạt: Dễ dàng kết nối với điều khiển từ xa, khóa điện, nút bấm không dây hoặc hệ thống quản lý tòa nhà thông minh qua WiFi.
- Độ bền và tuổi thọ cao: Nhờ cấu trúc ray liền khối, motor encoder và bo mạch KODO T400, hệ thống cửa duy trì hiệu suất ổn định lâu dài, giảm thiểu chi phí bảo dưỡng.
CASCA Việt Nam – Đối Tác Uy Tín Và Liên Hệ Tại Hà Nội
CASCA Việt Nam là đơn vị nhập khẩu, phân phối và thi công chính hãng cửa tự động KODO tại Việt Nam. Với hơn 10 năm kinh nghiệm cùng đội ngũ kỹ thuật viên chuyên môn cao, CASCA đã triển khai thành công hàng trăm công trình cửa tự động cho siêu thị, bệnh viện, nhà máy và trung tâm thương mại trên toàn quốc.
Điểm mạnh của CASCA Việt Nam không chỉ nằm ở sản phẩm mà còn thể hiện trong toàn bộ quy trình phục vụ khách hàng:
- Chất lượng vượt trội – nhập khẩu chính hãng: Toàn bộ sản phẩm nhập khẩu trực tiếp từ Hàn Quốc, đạt chuẩn quốc tế về độ bền, an toàn và vận hành êm ái.
- Đội ngũ kỹ thuật chuyên sâu: Luôn cập nhật công nghệ mới, thi công chuẩn xác, tư vấn giải pháp tối ưu cho từng công trình.
- Dịch vụ trọn gói: CASCA đồng hành cùng khách hàng từ khâu khảo sát, thiết kế, lắp đặt đến bảo hành, bảo trì định kỳ.
- Giá trị bền vững: Chế độ bảo hành 24 tháng, hỗ trợ kỹ thuật tận nơi nhanh chóng, đảm bảo sự yên tâm lâu dài cho mọi dự án.
Nếu bạn đang tìm hiểu về dịch vụ lắp đặt cửa tự động tại Hà Nội uy tín, chuyên nghiệp – CASCA Việt Nam chính là lựa chọn đáng tin cậy cho mọi công trình.

Liên hệ chi nhánh Hà Nội:
CÔNG TY TNHH ĐẦU TƯ VÀ THƯƠNG MẠI CASCA VIỆT NAM
- Địa chỉ: U3-L44, KĐT Đô Nghĩa, Yên Nghĩa, Hà Đông, Hà Nội
- Hotline: 0965.911.566 / 0964.776.883
- Email: cascavietnam@gmail.com
- Website: https://casca.vn
Liên hệ ngay CASCA Việt Nam để được tư vấn và báo giá cửa kính trượt tự động KODO phù hợp nhất cho siêu thị, văn phòng hoặc cửa hàng của bạn – giải pháp hiện đại, bền bỉ và tinh tế cho mọi không gian.
