Giữa trung tâm thành phố Cần Thơ – nơi sầm uất và năng động bậc nhất miền Tây, sảnh tòa nhà 59 Phan Đình Phùng được lựa chọn lắp đặt cửa kính trượt tự động KODO bộ 2 cánh, nhằm mang lại vẻ đẹp hiện đại, tinh tế và tiện nghi cho khu vực đón tiếp. Dự án được CASCA Việt Nam thi công ngày 26/12/2023, hướng đến tiêu chuẩn vận hành an toàn, bền bỉ và thẩm mỹ cao.

Giải Pháp Kỹ Thuật Và Lựa Chọn Sản Phẩm
Đặc thù của khu vực sảnh là lưu lượng người ra vào lớn, đòi hỏi hệ thống vận hành ổn định, độ chính xác cao và độ bền làm việc liên tục. CASCA Việt Nam vì vậy lựa chọn cửa trượt tự động bộ 2 cánh dành cho không gian công cộng, bảo đảm tiêu chí chịu tải, an toàn và thẩm mỹ cho mặt tiền tòa nhà.
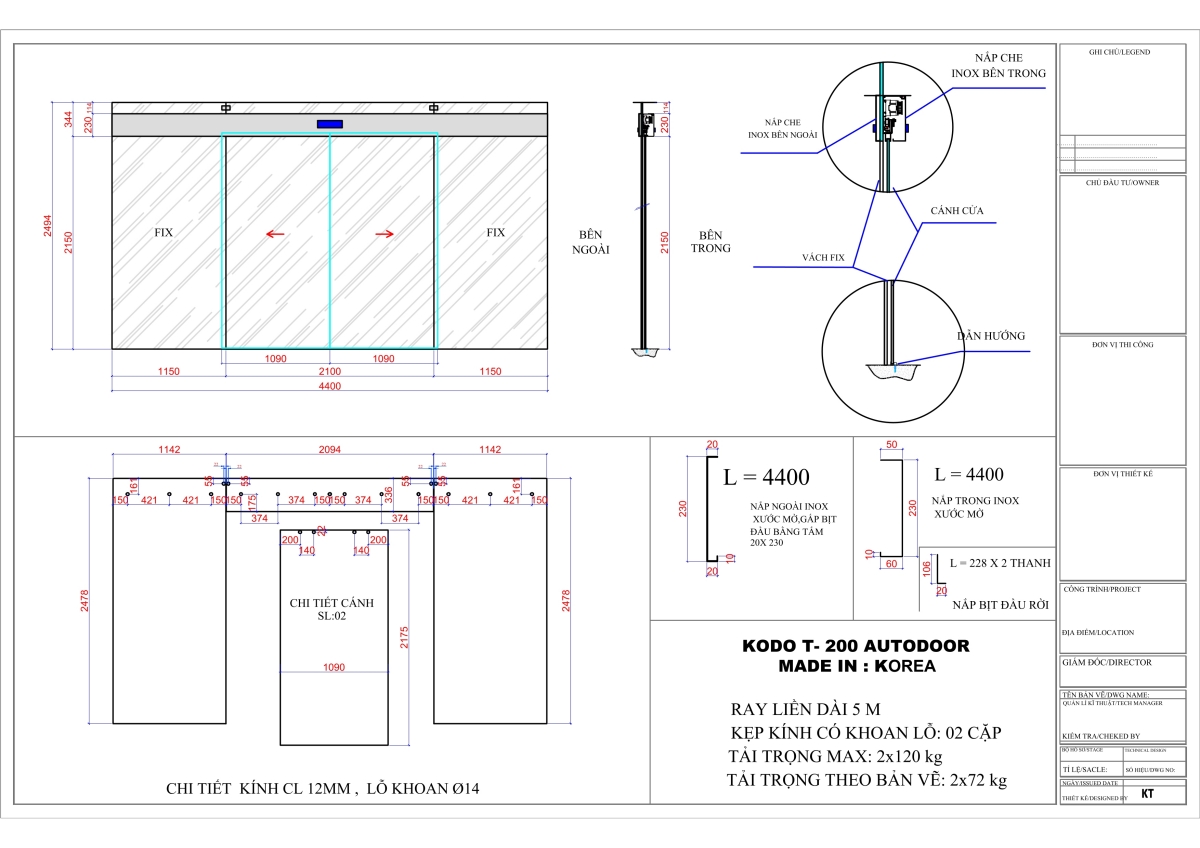
Về mặt kỹ thuật, hệ thống sử dụng ray nhôm liền khối dài 5.000 mm (L ray theo bản vẽ 4.400 mm), hai cánh kính cường lực 12 mm khoan lỗ Ø14 cho bộ kẹp, kèm vách fix hai bên để tăng độ cứng tổng thể.
Nắp che inox 304 xước mờ được bố trí cả bên trong và bên ngoài, đầu ray hàn/gấp bít kín theo kích thước bản vẽ để chống bụi và ẩm.
Tải trọng danh định tối đa 2×120 kg; tải trọng theo bản vẽ 2×72 kg/cánh, phù hợp cường độ sử dụng tại sảnh. Hệ thống kích hoạt bằng mắt thần hồng ngoại nhận diện chuyển động chính xác, phối hợp dẫn hướng sàn và giảm chấn giúp đóng/mở êm, hạn chế va đập.
Nguồn AC 220V chờ sẵn được đưa lên ray theo đúng vị trí thiết kế, dây tín hiệu cảm biến đi ẩn trong nắp che nhằm đảm bảo thẩm mỹ và an toàn điện. Nhờ cấu trúc này, cửa vận hành êm, độ ồn thấp, độ kín khít tốt và dễ dàng bảo trì định kỳ.

Giá Trị Cửa Tự Động KODO Đem Lại Cho Không Gian Tòa Nhà
Ngay sau khi hoàn thiện, hệ thống cửa vận hành ổn định, đồng bộ và đạt độ chính xác cao, mang lại trải nghiệm sử dụng mượt mà cho mọi lượt ra vào. Cửa trượt tự động KODO giúp giảm thiểu ma sát cơ học, tối ưu tốc độ đóng mở và đảm bảo an toàn tuyệt đối nhờ tính năng cảm biến thông minh. Lớp kính cường lực trong suốt không chỉ tạo cảm giác rộng mở, sang trọng mà còn giúp tiết kiệm điện năng nhờ khả năng tận dụng tối đa ánh sáng tự nhiên. Nhờ thiết kế cách âm và độ kín khít tốt, khu vực sảnh luôn duy trì được môi trường yên tĩnh, điều hòa ổn định, góp phần nâng cao hiệu quả sử dụng năng lượng cho toàn bộ tòa nhà.
Công nghệ cảm biến mắt thần thế hệ mới của KODO mang lại sự linh hoạt trong vận hành: tự động nhận diện chuyển động, đóng mở nhanh, hạn chế va đập và phù hợp với mọi điều kiện môi trường. Hệ thống điều khiển trung tâm còn cho phép tùy chỉnh chế độ hoạt động như mở 1 chiều, khóa đêm hay giữ cửa mở cố định khi cần, đảm bảo tính linh hoạt tối đa.


Đại diện quản lý tòa nhà chia sẻ: “Từ khi lắp đặt cửa kính trượt tự động, khu vực sảnh trở nên hiện đại và chuyên nghiệp hơn hẳn. Cửa hoạt động ổn định, độ nhạy cao và rất thuận tiện trong việc đón tiếp khách. Chúng tôi hoàn toàn hài lòng với chất lượng thi công của CASCA Việt Nam.”
Dự án không chỉ mang lại giá trị thẩm mỹ và công năng vượt trội cho công trình, mà còn thể hiện dấu ấn của CASCA Việt Nam – thương hiệu tiên phong trong việc mang công nghệ cửa tự động chuẩn Hàn Quốc đến từng không gian thương mại và công trình công cộng. Liên hệ ngay với CASCA Việt Nam để trải nghiệm chuẩn mực mới về chất lượng, dịch vụ và đẳng cấp!
CASCA Việt Nam – Chuyên Gia Giải Pháp Cửa Tự Động Toàn Diện
Với hơn 10 năm kinh nghiệm trong lĩnh vực thi công, lắp đặt và phân phối cửa tự động, CASCA Việt Nam đã xây dựng uy tín vững chắc và trở thành đối tác chiến lược của các thương hiệu hàng đầu thế giới như KODO, TERAOKA, MICOMDOOR.
Chúng tôi không chỉ là nhà cung cấp thiết bị mà còn là đơn vị tư vấn và triển khai giải pháp toàn diện, từ khảo sát, thiết kế, thi công đến bảo hành, bảo trì dài hạn. CASCA luôn hướng đến việc mang lại cho khách hàng những công trình có giá trị sử dụng bền vững, thẩm mỹ cao và vận hành an toàn tuyệt đối.
Đội ngũ trình độ chuyên môn cao, giàu kinh nghiệm thực tế và được đào tạo chuyên sâu về tiêu chuẩn kỹ thuật quốc tế. Các công trình do CASCA thực hiện luôn tuân thủ quy trình kiểm soát chất lượng nghiêm ngặt, đảm bảo chính xác trong lắp đặt, ổn định trong vận hành và tinh tế trong từng chi tiết thẩm mỹ.

CASCA cam kết mang đến chính sách bảo hành minh bạch, hỗ trợ kỹ thuật 24/7, bảo trì định kỳ miễn phí trong giai đoạn đầu và sẵn sàng có mặt nhanh chóng khi khách hàng cần hỗ trợ. Bên cạnh đó, tất cả sản phẩm đều được nhập khẩu 100% chính hãng, có chứng nhận xuất xứ – chứng nhận chất lượng (CO/CQ) rõ ràng và đáp ứng đầy đủ các tiêu chuẩn an toàn điện – cơ quốc tế.
CASCA Việt Nam luôn duy trì triết lý hoạt động: “Mang công nghệ phục vụ cuộc sống – Kiến tạo không gian hiện đại, tiện nghi” Đây không chỉ là khẩu hiệu mà là cam kết đồng hành dài lâu cùng khách hàng, mang đến sự an tâm tuyệt đối trong từng công trình và từng trải nghiệm sử dụng.

Nếu bạn đang tìm kiếm đơn vị thi công cửa tự động chuyên nghiệp và uy tín, hãy liên hệ ngay với CASCA Việt Nam để được tư vấn chi tiết:
CASCA Việt Nam – Chi nhánh TP. Hồ Chí Minh
- Địa chỉ: 2 Lê Thị Nho, Phường Trung Mỹ Tây, Quận 12, TP. Hồ Chí Minh
- Hotline: 0903.786.883 / 0937.226.883
- Email: cascavietnam@gmail.com
- Website: https://casca.vn
Dự án cửa kính trượt tự động KODO tại sảnh tòa nhà 59 Phan Đình Phùng, Cần Thơ không chỉ khẳng định năng lực thi công của CASCA Việt Nam mà còn góp phần nâng tầm hình ảnh công trình theo hướng hiện đại, chuyên nghiệp và tiện nghi. Đây chính là minh chứng rõ nét cho tầm nhìn và chất lượng dịch vụ hàng đầu của CASCA trên hành trình mang công nghệ cửa tự động chuẩn Hàn Quốc đến mọi công trình Việt Nam.
