Tọa lạc tại 104 Tuệ Tĩnh, Hai Bà Trưng, Hà Nội, Văn phòng Công ty Luật Việt Trí là không gian làm việc chuyên nghiệp, đòi hỏi tính bảo mật, tiện nghi và hình ảnh đại diện cho thương hiệu. Chủ đầu tư mong muốn một hệ thống cửa tự động hiện đại, vừa đảm bảo thẩm mỹ sang trọng, vừa thuận tiện cho nhân viên và khách hàng ra vào.
Sau khi khảo sát mặt bằng thực tế, CASCA Việt Nam đã tư vấn và triển khai lắp đặt cửa kính trượt tự động KODO – dòng sản phẩm phù hợp cho văn phòng, giúp tối ưu không gian, tiết kiệm năng lượng và nâng cao hình ảnh chuyên nghiệp cho doanh nghiệp.
“Cửa tự động không chỉ là thiết bị kỹ thuật mà còn là yếu tố thể hiện phong cách và quy chuẩn làm việc của doanh nghiệp.”

Hồ sơ nhanh công trình
Tham khảo thêm các dự án cửa tự động CASCA được triển khai tại khu vực Hà Nội.
- Địa chỉ: 104 Tuệ Tĩnh, Hai Bà Trưng, Hà Nội.
- Thời gian thi công: 28/07/2023.
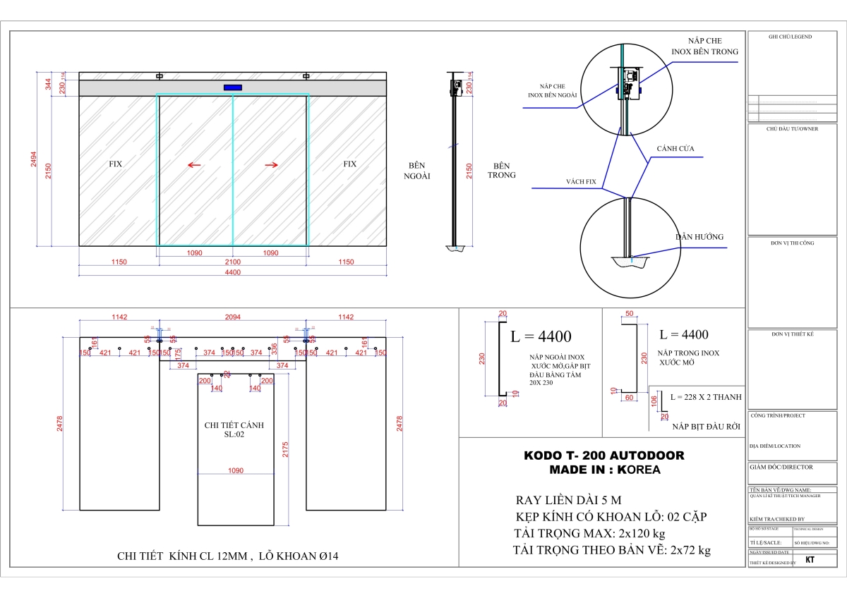
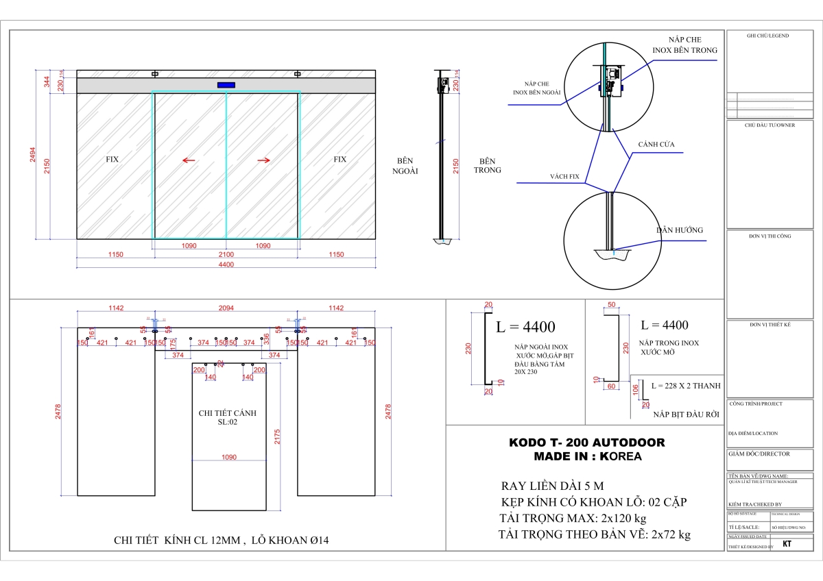
- Loại cửa: Cửa trượt kính tự động 2 cánh KODO.
- Hệ thống vận hành: Cảm biến mắt thần tự động.
- Hãng sản xuất: KODO – nhập khẩu chính hãng từ Hàn Quốc.
- Bảo hành: 24 tháng.

Giải pháp kỹ thuật & thiết kế thi công chi tiết
Cửa được thiết kế với kính cường lực 12mm và ray hợp kim nhôm cao cấp, tích hợp motor KODO T400 có công suất ổn định và độ ồn thấp. Hệ thống mắt thần cảm biến giúp nhận diện người ra vào nhanh và chính xác, đảm bảo sự tiện nghi và an toàn tối đa.
Cấu tạo cửa gồm 2 cánh trượt đối xứng di chuyển linh hoạt trên ray dẫn hướng, có khả năng tự đóng kín mềm, giúp hạn chế thất thoát nhiệt, tiết kiệm điện năng cho hệ thống điều hòa của văn phòng. Bộ điều khiển trung tâm cho phép tùy chỉnh tốc độ mở – đóng, thời gian trễ, vùng nhận diện cảm biến phù hợp với môi trường làm việc.
Với không gian văn phòng hiện đại, cửa kính trong suốt mang lại cảm giác mở rộng không gian, đồng thời tạo ấn tượng chuyên nghiệp và đẳng cấp khi khách hàng đến giao dịch.

Quy trình thi công cửa tự động chuẩn hóa
CASCA Việt Nam áp dụng quy trình lắp đặt cửa tự động chuyên nghiệp theo tiêu chuẩn quốc tế, gồm 5 giai đoạn chính:
- Khảo sát & đo đạc: Đánh giá vị trí lắp đặt, xác định giải pháp phù hợp.
- Thiết kế & duyệt bản vẽ: Lên bản vẽ kỹ thuật chi tiết, xác định các thông số kỹ thuật.
- Lắp đặt thiết bị: Thi công ray, motor, cảm biến và bộ điều khiển.
- Căn chỉnh & kiểm tra: Tinh chỉnh tốc độ, độ mở và vùng quét cảm biến.
- Bàn giao & hướng dẫn: Kiểm tra vận hành, bàn giao hướng dẫn sử dụng và bảo trì định kỳ.
Trong quá trình thi công, CASCA luôn chú trọng yếu tố an toàn – thẩm mỹ – độ chính xác kỹ thuật, đảm bảo công trình vận hành ổn định và bền bỉ lâu dài.

Hiệu quả thực tế & lợi ích mang lại
Sau khi đưa vào sử dụng, hệ thống cửa KODO giúp Văn phòng Công ty Luật Việt Trí đạt được nhiều giá trị rõ rệt:
- Tăng tính chuyên nghiệp: Cửa tự động tạo ấn tượng hiện đại, sang trọng cho không gian làm việc.
- Tiện nghi & an toàn: Nhân viên và khách hàng ra vào dễ dàng, không cần chạm tay, phù hợp tiêu chuẩn vệ sinh hiện đại.
- Tiết kiệm năng lượng: Cửa đóng kín tự động giúp duy trì nhiệt độ ổn định, giảm chi phí vận hành điều hòa.
- Độ bền & ổn định cao: Motor KODO hoạt động êm, tuổi thọ trên 5 năm, ít bảo trì.
“Giải pháp cửa tự động KODO không chỉ mang lại sự tiện nghi mà còn góp phần định hình hình ảnh doanh nghiệp chuyên nghiệp, năng động và hiện đại.”
Năng lực & cam kết của CASCA Việt Nam
Với hơn 10 năm kinh nghiệm trong lĩnh vực cửa kính tự động, CASCA luôn là đối tác đáng tin cậy của hàng trăm doanh nghiệp trên toàn quốc. Chúng tôi mang đến các giải pháp thiết kế – thi công – bảo hành – bảo trì toàn diện, đáp ứng mọi yêu cầu kỹ thuật và thẩm mỹ.
Điểm mạnh nổi bật:
- Chuyên môn kỹ thuật vững vàng: Đội ngũ kỹ sư được đào tạo bài bản, am hiểu chi tiết từng dòng sản phẩm KODO.
- Giải pháp tối ưu cho môi trường văn phòng: Hạn chế tiếng ồn, tăng tính riêng tư, đảm bảo an toàn và tiện nghi.
- Thi công nhanh gọn – chuẩn xác: Không làm gián đoạn hoạt động doanh nghiệp.
- Dịch vụ bảo hành & hậu mãi tận tâm: CAM kết bảo hành 24 tháng và bảo trì trọn đời, hỗ trợ kỹ thuật kịp thời.
Dự án Cửa trượt tự động KODO – Văn phòng Công ty Luật Việt Trí, Hà Nội là minh chứng rõ ràng cho năng lực và uy tín của CASCA Việt Nam trong lĩnh vực cửa tự động cho văn phòng hiện đại. Giải pháp KODO không chỉ đáp ứng yêu cầu vận hành ổn định, mà còn góp phần khẳng định hình ảnh chuyên nghiệp và đẳng cấp của doanh nghiệp.
Nếu bạn đang tìm kiếm giải pháp cửa tự động cho văn phòng hoặc công trình thương mại, hãy liên hệ với CASCA Việt Nam để được tư vấn và khảo sát miễn phí.
Liên hệ tư vấn & khảo sát:
- Địa chỉ: U3-L44, KĐT Đô Nghĩa, Yên Nghĩa, Hà Đông, Hà Nội.
- Hotline: 0965.911.566 / 0964.776.883
- Email: cascavietnam@gmail.com
- Website: https://casca.vn
