Ngày 27/03/2025, CASCA Việt Nam đã hoàn thiện và bàn giao hệ thống cửa kính trượt tự động KODO 2 cánh cho khu văn phòng tại chung cư An Khang, đường số 19, Thảo Điền, TP.HCM. Công trình ứng dụng cảm biến mắt thần KODO – giải pháp tự động hóa cao cấp, mang lại sự tiện nghi, an toàn và tính thẩm mỹ vượt trội cho khu vực làm việc.

Phân tích yêu cầu kỹ thuật của dự án
Không gian văn phòng tại chung cư An Khang được thiết kế theo phong cách hiện đại, sử dụng vật liệu kính làm chủ đạo để tạo sự thông thoáng và tăng cường ánh sáng tự nhiên. Gia chủ yêu cầu một hệ cửa tự động vận hành êm ái, bền bỉ, đồng bộ với hệ thống điều hòa và kiểm soát ra vào.
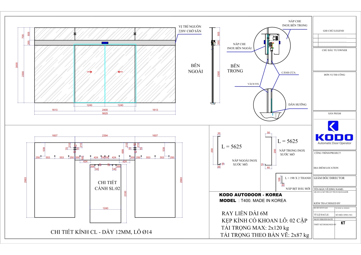
Dựa trên bản vẽ kỹ thuật, hệ thống được thiết kế theo tiêu chuẩn KODO Autodoor Korea – Model T400, ray dài 6m, tải trọng tối đa 2x120kg, sử dụng motor đồng bộ với bộ điều khiển trung tâm thông minh.

Cấu hình kỹ thuật chi tiết và công nghệ vận hành cửa tự động KODO
Hệ thống cửa kính tự động được thiết kế và thi công trọn gói bởi CASCA với cấu hình kỹ thuật như sau:
- Kính cường lực 12mm, lỗ Ø14 khoan bắt phụ kiện, chịu lực cao, đảm bảo an toàn tuyệt đối khi va đập.
 - Ray nhôm đúc nguyên khối dài 6m, bề mặt anod chống oxy hóa, tích hợp giảm chấn giúp chuyển động êm nhẹ, độ bền trên 10 năm.
 - Motor KODO 100W không chổi than, tốc độ ổn định, độ ồn thấp dưới 38dB, có chế độ tiết kiệm điện năng tự động.
 - Bộ điều khiển trung tâm thông minh, hỗ trợ lập trình thời gian đóng/mở, chế độ giữ cửa, nhận tín hiệu từ cảm biến và nút bấm Exit.
 - Cảm biến mắt thần hồng ngoại kép, góc quét 85°, tầm phát hiện 3m, độ nhạy cao giúp cửa phản hồi tức thì khi có người tiếp cận.
 - Nắp che Inox xước mờ, giấu toàn bộ hệ cơ khí bên trong, đảm bảo tính thẩm mỹ cho không gian văn phòng.
 
Hệ thống đạt tiêu chuẩn EN16005 (Châu Âu) về an toàn cửa tự động và tiêu chuẩn IEC 60335 về an toàn điện.



Quy trình thi công tiêu chuẩn và phương pháp kiểm định kỹ thuật
Quá trình lắp đặt được đội ngũ kỹ sư CASCA thực hiện nghiêm ngặt, đảm bảo độ chính xác và độ bền hệ thống:
- Khảo sát hiện trạng và đo đạc chi tiết khung bao, tính toán vị trí đặt ray, motor và cảm biến sao cho đồng bộ với hệ trần và tường thạch cao.
 - Gia cố khung ray và lắp hệ treo cánh kính, đảm bảo độ cân bằng và tải trọng theo tiêu chuẩn kỹ thuật KODO.
 - Đấu nối bộ điều khiển và cảm biến mắt thần, kiểm tra tín hiệu điện, hiệu chỉnh độ nhạy và vùng quét.
 - Chạy thử nghiệm 500 chu kỳ đóng/mở liên tục, đo độ ồn, tốc độ phản hồi và khả năng tự dừng khi gặp vật cản.
 - Nghiệm thu và bàn giao, kèm hướng dẫn vận hành, bảo trì và hồ sơ kỹ thuật hoàn chỉnh.
 
Sau khi hoàn thiện, hệ thống vận hành ổn định, đóng/mở nhẹ nhàng trong 2,8 giây, không phát tiếng ồn, độ chính xác cảm biến đạt 99%.



Đánh giá hiệu quả vận hành và giá trị ứng dụng thực tế
Hệ thống cửa tự động KODO không chỉ mang lại sự thuận tiện trong di chuyển, mà còn nâng cao hình ảnh chuyên nghiệp cho văn phòng làm việc:
- Thẩm mỹ – nhận diện thương hiệu: khung profile mảnh (≈35–45 mm), kính cường lực 12 mm trong suốt, ray âm + nẹp che giấu cơ cấu; mặt nắp inox hairline đồng bộ nội thất, tạo trục nhìn thông thoáng cho sảnh tiếp đón.
 - Tiết kiệm năng lượng có cơ sở: logic đóng sớm + giữ mở theo tải (2–8 s) giảm thất thoát lạnh; motor brushless chế độ standby ~3–5 W; gioăng kín hạn chế lọt gió → hỗ trợ điều hòa hoạt động ổn định hơn.
 - An toàn theo chuẩn EN16005: cảm biến hiện diện + chuyển động, dừng mềm/đảo chiều khi gặp vật cản; lực mép đóng được hiệu chỉnh ở ngưỡng an toàn (<150 N); có phương án mở tay khi mất điện, tùy chọn safety edge & UPS cho tình huống khẩn.
 - Độ tin cậy & bảo trì: cơ cấu con lăn chống mài mòn, ray nhôm đúc dày, độ ồn đo được <38 dB; mô‑đun điều khiển độc lập giúp thay nhanh từng khối (motor, controller, cảm biến)
 
CASCA Việt Nam – Thương hiệu dẫn đầu giải pháp cửa tự động chuyên nghiệp
Với hơn 10 năm kinh nghiệm trong lĩnh vực cửa tự động, CASCA Việt Nam đã triển khai hàng nghìn công trình trên toàn quốc, từ dân dụng đến công nghiệp. CASCA không chỉ cung cấp sản phẩm mà còn mang đến giải pháp tổng thể từ tư vấn, thiết kế, thi công đến bảo trì.
Ưu điểm nổi bật của CASCA Việt Nam:
- Năng lực kỹ sư và chuyên môn thực tế: đội ngũ kỹ sư CASCA được đào tạo bài bản về cơ điện tử và tự động hóa, trực tiếp tham gia khảo sát, lập trình và hiệu chỉnh từng hệ thống theo cấu trúc công trình, đảm bảo tối ưu cả vận hành lẫn thẩm mỹ.
 - Hệ thống kho linh kiện và bảo hành thông minh: CASCA vận hành mạng lưới kho linh kiện tại 3 miền, tích hợp quản lý tồn kho bằng mã QR, giúp truy xuất nhanh và rút ngắn thời gian thay thế xuống dưới 24 giờ.
 - Dịch vụ hậu mãi chủ động 24/7: áp dụng hệ thống ticket điện tử để theo dõi lịch sử bảo trì, đảm bảo phản hồi trong vòng 2 giờ và giám sát tình trạng thiết bị theo thời gian thực.
 - Giải pháp tích hợp công nghệ đồng bộ: ngoài cửa tự động, CASCA còn phát triển giải pháp kết nối với hệ thống kiểm soát ra vào (Access Control), nhận diện khuôn mặt, chuông hình và hệ thống quản lý tòa nhà (BMS), tạo thành một nền tảng vận hành toàn diện cho doanh nghiệp.
 
CASCA – thương hiệu tiên phong trong lĩnh vực cửa tự động, mang đến giải pháp tối ưu về công nghệ, an toàn và thẩm mỹ cho không gian sống và làm việc hiện đại.
Liên hệ CASCA Việt Nam ngay hôm nay để được tư vấn giải pháp cửa kính trượt tự động KODO phù hợp nhất cho dự án của bạn.
CÔNG TY TNHH ĐẦU TƯ VÀ THƯƠNG MẠI CASCA VIỆT NAM
VPHN: U3-L44, KĐT Đô Nghĩa, Yên Nghĩa, Hà Đông – Hotline: 0965.911.566 / 0964.776.883
VPSG: 2 Lê Thị Nho, Trung Mỹ Tây, Quận 12 – Hotline: 0903.786.883 / 0937.226.883
VPĐN: 31 Trừ Văn Thố, Hòa Thọ Đông, Cẩm Lệ – Hotline: 0964.946.883
Email: cascavietnam@gmail.com
Website: https://casca.vn
							
					
								