Trong thiết kế văn phòng hiện đại, khu vực sảnh ra vào đóng vai trò vô cùng quan trọng, không chỉ là lối đi lại mà còn thể hiện bộ mặt chuyên nghiệp và đẳng cấp của doanh nghiệp. Việc lựa chọn giải pháp cửa tự động thay thế cho các loại cửa truyền thống đang trở thành xu hướng tất yếu để nâng cao trải nghiệm người dùng và tối ưu hóa không gian. Dự án lắp đặt cửa kính trượt tự động tại văn phòng công ty Han House là một minh chứng điển hình cho giải pháp này, được thực hiện bởi đội ngũ kỹ thuật viên giàu kinh nghiệm của CASCA Việt Nam.

Tổng Quan Về Dự Án Cửa Tự Động Văn Phòng Han House
Khu vực Quận 7, TP.HCM là nơi tập trung nhiều văn phòng cao cấp với yêu cầu khắt khe về thẩm mỹ và công năng. Tại dự án văn phòng công ty Han House, chủ đầu tư đã tin tưởng lựa chọn CASCA Việt Nam là đơn vị cung cấp và thi công hạng mục cửa tự động. Dựa trên khảo sát thực tế và nhu cầu sử dụng tần suất cao tại sảnh văn phòng, chúng tôi đã tư vấn giải pháp cửa trượt sử dụng thiết bị cửa tự động KODO nhập khẩu Hàn Quốc.
Thông tin chi tiết dự án:
- Tên dự án: Văn phòng công ty HAN HOUSE
- Địa chỉ thi công: 488 Phạm Thái Bường, Phường Tân Phong, Quận 7, TP.HCM
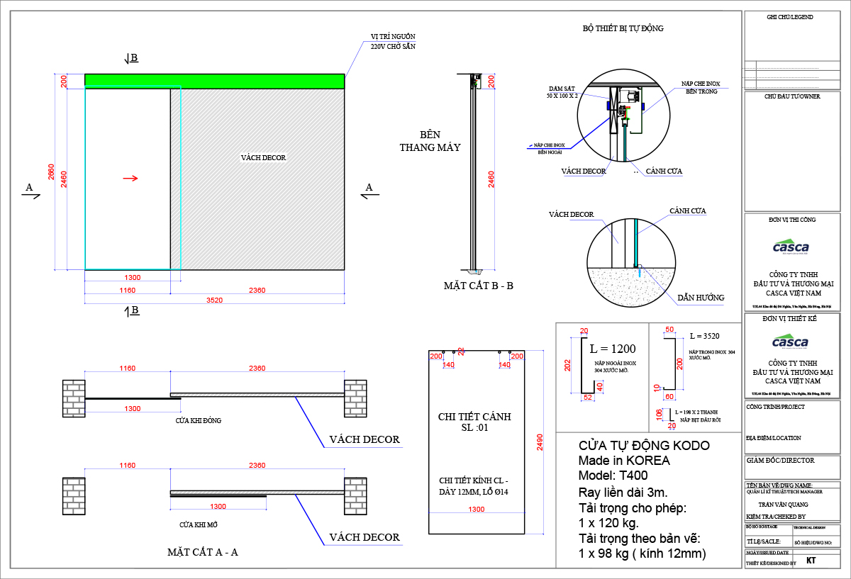
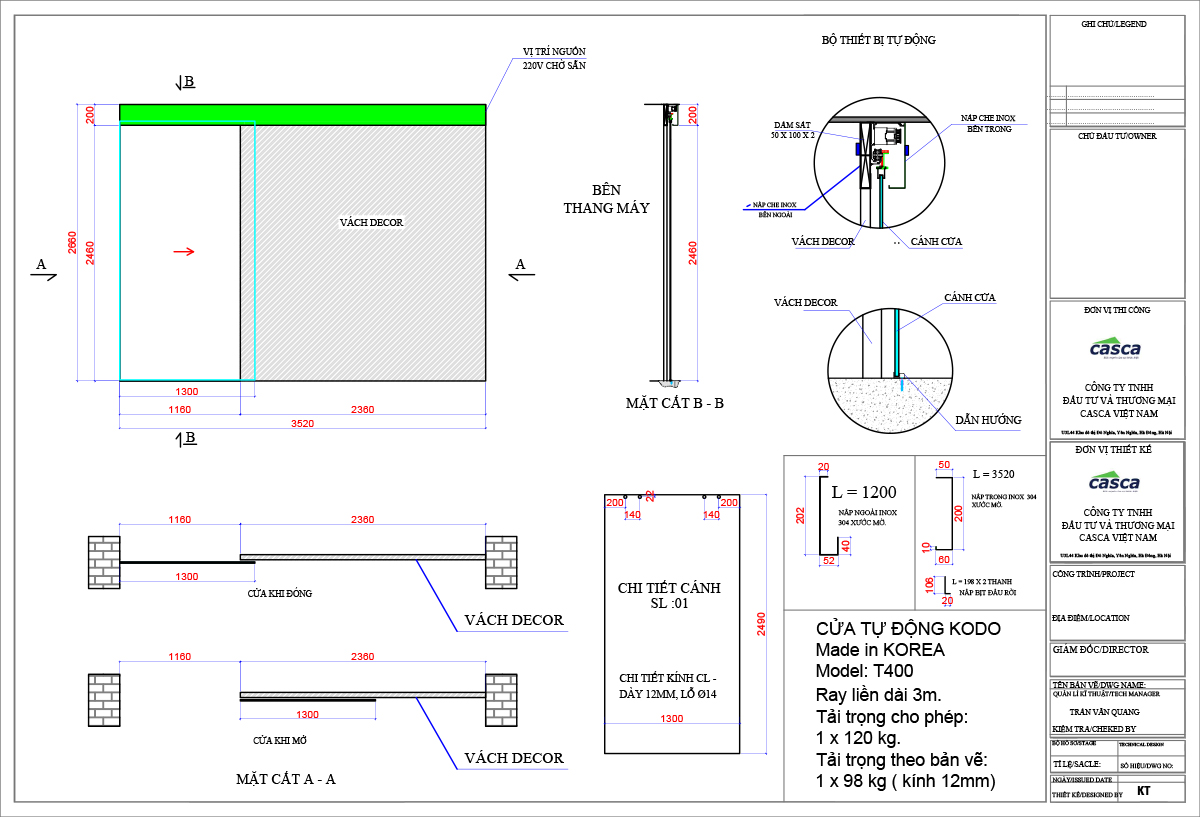
- Hạng mục: Cửa kính trượt tự động, thiết kế bộ 1 cánh
- Thương hiệu thiết bị: KODO (Hàn Quốc)
- Ứng dụng: Cửa ra vào văn phòng
- Cơ chế hoạt động: Mở cửa tự động bằng mắt thần cảm biến
- Thời gian hoàn thiện: 24/04/2023
- Chế độ bảo hành: 24 tháng chính hãng

Giải Pháp Cửa Trượt Tự Động KODO Tối Ưu Hóa Không Gian Văn Phòng
KODO là thương hiệu cửa tự động hàng đầu tại Hàn Quốc, nổi tiếng với sự bền bỉ và công nghệ điều khiển thông minh. Việc áp dụng hệ thống này tại Han House mang lại những lợi ích vượt trội về cả kỹ thuật lẫn trải nghiệm người dùng.
Thiết kế cửa trượt 1 cánh tiết kiệm diện tích tối đa
Đối với những mặt tiền văn phòng cần tận dụng tối đa chiều rộng lối đi nhưng bị giới hạn về không gian trượt của cánh, giải pháp cửa trượt 1 cánh (Single Sliding Door) là lựa chọn hoàn hảo.
Khác với cửa mở quay truyền thống chiếm dụng diện tích quét bán nguyệt, cửa kính trượt tự động vận hành theo phương ngang, giúp giải phóng không gian, tạo cảm giác sảnh chờ rộng rãi và thông thoáng hơn. Thiết kế này đặc biệt phù hợp với kiến trúc hiện đại, tối giản của Han House.
Công nghệ vận hành bằng mắt thần cảm biến thông minh
Hệ thống được trang bị mắt thần (sensor) độ nhạy cao, cho phép nhận diện chính xác chuyển động của người hoặc vật thể trong vùng quét. Cửa sẽ tự động mở ra tức thì khi có người tiếp cận và đóng lại nhẹ nhàng sau khi người đã đi qua. Tính năng này không chỉ mang lại sự tiện nghi, sang trọng mà còn đảm bảo vệ sinh khi người dùng không cần chạm tay vào cửa. Đồng thời, cơ chế đóng mở tự động giúp hạn chế thất thoát nhiệt năng điều hòa, giữ cho môi trường văn phòng luôn mát mẻ và tiết kiệm điện năng hiệu quả.
Động cơ mạnh mẽ và vận hành êm ái
Bộ thiết bị KODO được trang bị động cơ điện một chiều không chổi than (Brushless DC Motor), cho phép cửa vận hành liên tục với tần suất cao mà không gây tiếng ồn khó chịu. Hệ thống ray trượt và con lăn được gia công chính xác, giúp cánh cửa di chuyển mượt mà, đảm bảo sự yên tĩnh cần thiết cho môi trường làm việc chuyên nghiệp.

Quy Trình Thi Công Chuyên Nghiệp Của CASCA Việt Nam
Để đảm bảo dự án tại Han House được bàn giao đúng tiến độ và đạt tiêu chuẩn kỹ thuật cao nhất, CASCA Việt Nam đã tuân thủ quy trình làm việc nghiêm ngặt qua 5 bước:
- Khảo sát hiện trạng: Đội ngũ kỹ thuật trực tiếp đến đo đạc thực tế tại đường Phạm Thái Bường, đánh giá kỹ lưỡng kết cấu đà gia cố, nguồn điện và không gian lắp đặt để lên phương án thi công tối ưu nhất, tránh phát sinh lỗi kỹ thuật về sau.
- Tư vấn giải pháp chuyên sâu: Dựa trên số liệu khảo sát, chúng tôi đề xuất model KODO có công suất phù hợp nhất với tải trọng cánh kính và kích thước thông thủy của văn phòng, đảm bảo độ bền và hiệu suất hoạt động lâu dài.
- Gia công và lắp đặt chính xác: Tiến hành lắp đặt hệ thống ray nhôm hợp kim siêu cứng, động cơ, kẹp kính chuyên dụng và cánh kính cường lực. Mọi chi tiết đều được cân chỉnh bằng máy lazer để đảm bảo độ thẳng, phẳng và độ kín khít tuyệt đối.
- Đấu nối và vận hành thử (Testing): Kết nối hệ thống điện, mắt thần cảm biến và bộ điều khiển trung tâm. Các kỹ thuật viên sẽ cài đặt và tinh chỉnh các thông số như tốc độ đóng/mở, thời gian giữ cửa, lực phanh an toàn để phù hợp nhất với nhu cầu sử dụng thực tế của khách hàng.
- Vệ sinh và bàn giao công trình: Sau khi hoàn tất chạy thử tải, chúng tôi tiến hành vệ sinh sạch sẽ toàn bộ khu vực thi công, hướng dẫn chi tiết cho đại diện Han House cách sử dụng, bảo quản an toàn và bàn giao công trình cùng phiếu bảo hành chính hãng.


Lợi Ích Vượt Trội Khi Ứng Dụng Cửa Tự Động KODO Tại Han House
Việc đầu tư lắp đặt hệ thống cửa tự động KODO không chỉ đơn thuần là nâng cấp cơ sở vật chất, mà còn mang lại những giá trị thiết thực, nâng tầm không gian làm việc cho Han House:
- Nâng tầm đẳng cấp doanh nghiệp: Cánh cửa trượt tự động với thiết kế kính cường lực trong suốt kết hợp bộ điều khiển hiện đại tạo nên vẻ đẹp sang trọng, chuyên nghiệp ngay từ cái nhìn đầu tiên, gây ấn tượng mạnh với đối tác và khách hàng.
- Tối ưu hóa sự tiện nghi và vệ sinh: Cơ chế đóng mở hoàn toàn tự động giúp nhân viên và khách hàng di chuyển dễ dàng mà không cần dùng tay đẩy cửa, đặc biệt hữu ích khi mang vác tài liệu, thiết bị. Điều này cũng giúp hạn chế tiếp xúc bề mặt, đảm bảo vệ sinh nơi công cộng.
- Tiết kiệm năng lượng hiệu quả: Nhờ khả năng đóng kín khít và tự động đóng lại ngay sau khi người đi qua, hệ thống giúp ngăn chặn thất thoát hơi lạnh điều hòa ra bên ngoài, giữ cho nhiệt độ văn phòng luôn ổn định và giảm đáng kể chi phí điện năng hàng tháng.
- Vận hành an toàn và bền bỉ: Cảm biến an toàn thông minh giúp phát hiện vật cản nhanh chóng, đảm bảo an toàn tuyệt đối cho người qua lại. Động cơ KODO hoạt động êm ái, không gây tiếng ồn, giữ gìn sự yên tĩnh cần thiết cho môi trường văn phòng.
"Sự thay đổi sau khi lắp đặt hệ thống cửa tự động KODO thực sự vượt ngoài mong đợi của chúng tôi. Không gian văn phòng trở nên sang trọng và chuyên nghiệp hơn hẳn. Đặc biệt, khả năng vận hành êm ái và giữ nhiệt điều hòa tốt giúp môi trường làm việc tại Han House luôn thoải mái, tạo ấn tượng mạnh mẽ với đối tác ngay từ lần đầu ghé thăm." — Đại diện Công ty Han House
Tại Sao Nên Chọn CASCA Việt Nam Cho Công Trình Của Bạn?
Giữa thị trường cửa tự động đa dạng, CASCA Việt Nam tự hào khẳng định vị thế là đối tác tin cậy hàng đầu nhờ những giá trị khác biệt mà chúng tôi mang lại cho từng công trình:
- Cam kết sản phẩm chính hãng 100%: Chúng tôi nói KHÔNG với hàng giả, hàng nhái. Mọi thiết bị KODO cung cấp đều được nhập khẩu đồng bộ, nguyên đai nguyên kiện, có đầy đủ giấy tờ CO/CQ chứng minh nguồn gốc xuất xứ rõ ràng, mang lại sự an tâm tuyệt đối cho chủ đầu tư.
- Năng lực kỹ thuật chuyên sâu: Sở hữu đội ngũ kỹ sư và kỹ thuật viên với hơn 10 năm kinh nghiệm thực chiến tại hàng trăm dự án lớn nhỏ. Chúng tôi không chỉ lắp đặt thiết bị, mà còn cung cấp giải pháp kỹ thuật toàn diện, xử lý linh hoạt mọi yêu cầu phức tạp nhất của mặt bằng thi công.
- Dịch vụ hậu mãi "thần tốc" và tận tâm: Với CASCA, việc bán hàng chỉ là sự khởi đầu. Chúng tôi cam kết chính sách bảo hành lên đến 24 tháng theo tiêu chuẩn nhà sản xuất. Đội ngũ hỗ trợ kỹ thuật luôn sẵn sàng 24/7 để khắc phục mọi sự cố, đảm bảo cửa vận hành liên tục, không làm gián đoạn hoạt động kinh doanh của bạn.
- Giá thành cạnh tranh nhất thị trường: Là nhà nhập khẩu và phân phối trực tiếp không qua trung gian, CASCA tự tin mang đến mức giá tốt nhất, giúp khách hàng tối ưu hóa chi phí đầu tư mà vẫn sở hữu những sản phẩm chất lượng đẳng cấp quốc tế.
Dự án lắp đặt cửa tự động tại văn phòng Han House đã được CASCA Việt Nam hoàn thiện và bàn giao. Hệ thống cửa KODO vận hành ổn định, mang lại sự tiện lợi cho người sử dụng. Chúng tôi luôn sẵn sàng tư vấn và cung cấp các giải pháp cửa tự động phù hợp với nhu cầu thực tế của từng khách hàng.
Quý khách hàng có nhu cầu tư vấn giải pháp cửa kính tự động cho văn phòng, showroom, nhà xưởng hay bệnh viện, vui lòng liên hệ ngay với CASCA Việt Nam để được khảo sát và báo giá chi tiết.

CÔNG TY TNHH ĐẦU TƯ VÀ THƯƠNG MẠI CASCA VIỆT NAM
- Chi nhánh Hà Nội: U3-L44, KĐT Đô Nghĩa, Yên Nghĩa, Hà Đông Hotline: 0965911566 / 0964776883
- Chi nhánh TP.HCM: 2 Lê Thị Nho, Trung Mỹ Tây, Quận 12 Hotline: 0903786883 / 0937226883
- Chi nhánh Đà Nẵng: 31 Trừ Văn Thố, Hòa Thọ Đông, Cẩm Lệ Hotline: 0964946883
- Email: cascavietnam@gmail.com
- Website: https://casca.vn/
