Dự án lắp đặt cửa kính trượt tự động KODO tại Gò Vấp là minh chứng cho xu hướng hiện đại hóa không gian sống đô thị. Với thiết kế tinh gọn, công nghệ tự động tiên tiến và độ bền vượt trội, sản phẩm được ứng dụng trong phòng khách nhằm mang lại sự tiện nghi, an toàn và thẩm mỹ cao. Đây là một trong những công trình tiêu biểu do CASCA Việt Nam thực hiện, thể hiện năng lực thi công chuyên nghiệp và sự đồng hành cùng khách hàng trong từng chi tiết.

Thông tin & Giới thiệu dự án
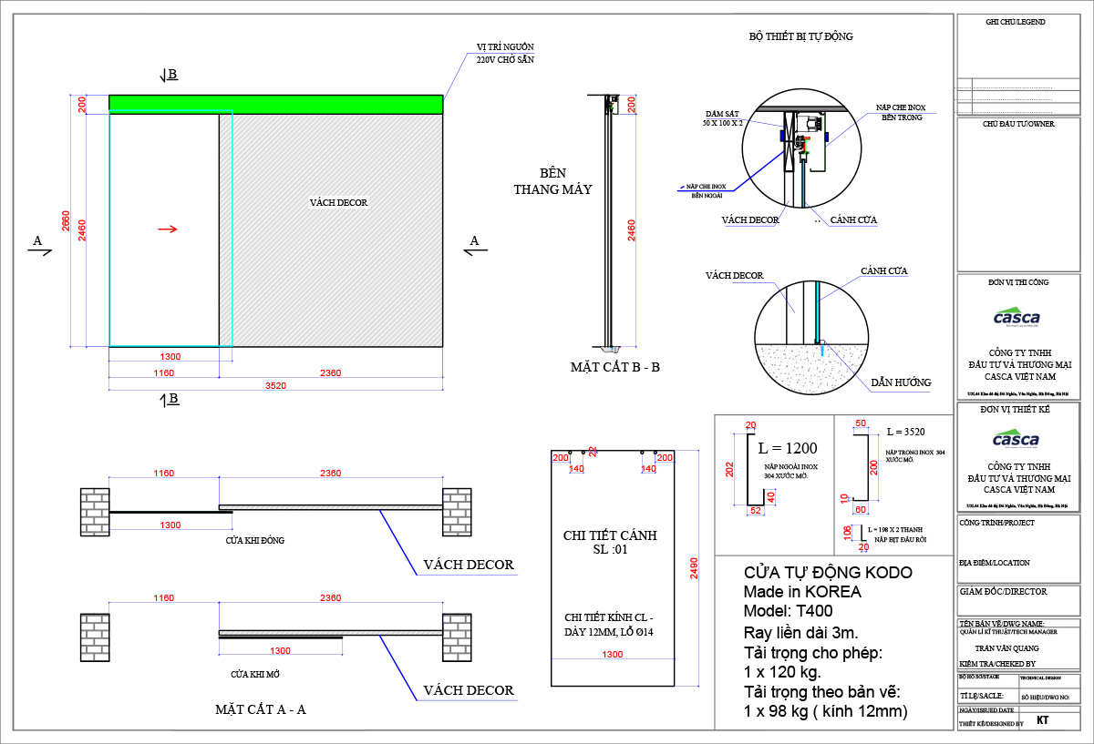
Dự án được thực hiện bởi Công ty TNHH Đầu tư và Thương mại CASCA Việt Nam, đơn vị tiên phong trong lĩnh vực cửa tự động chính hãng KODO đến từ Hàn Quốc. Ngôi nhà tọa lạc tại 468 Đường Thống Nhất, Phường 16, Quận Gò Vấp, TP. Hồ Chí Minh được lựa chọn để lắp đặt cửa kính trượt tự động 1 cánh – Model KODO T400, mang lại diện mạo mới hiện đại và tiện nghi.
Công trình được CASCA khởi công và hoàn thiện vào ngày 27/06/2023, với thời gian thi công nhanh gọn nhưng vẫn đảm bảo mọi tiêu chuẩn kỹ thuật khắt khe. Sản phẩm được bảo hành 24 tháng, vận hành thông qua nút bấm không dây thông minh, đem lại sự thoải mái tối đa cho người dùng. Với vị trí lắp đặt tại phòng khách, cửa kính trượt tự động giúp không gian trở nên thông thoáng, sang trọng và đậm chất công nghệ.
Không chỉ chú trọng vào tính năng tự động hóa, CASCA còn quan tâm đến yếu tố thẩm mỹ và độ bền của sản phẩm. Cửa KODO với thiết kế tinh tế, vận hành êm ái, chất liệu kính cường lực kết hợp inox xước mờ mang lại vẻ đẹp hiện đại, đồng thời tối ưu diện tích và ánh sáng – hoàn toàn phù hợp với xu hướng nhà thông minh hiện nay.

Thông số kỹ thuật chi tiết
- Bộ thiết bị: KODO T400 – Hàn Quốc
- Ray nhôm liền khối: Dài 3m
- Tải trọng cửa: 1 x 98kg (kính 12mm)
- Vật liệu: Nắp che inox 304 xước mờ, khung dầm sắt 50x100x2, cánh kính cường lực trong suốt
- Tính năng: Cửa mở – đóng linh hoạt qua nút bấm không dây, an toàn, tiện lợi và thẩm mỹ cao

Giá trị thực tế & Lợi ích vượt trội với gia chủ
Cửa tự động KODO không chỉ là chi tiết nội thất nâng cao giá trị thẩm mỹ mà còn là giải pháp thông minh giúp mở rộng không gian sống, tối ưu diện tích sử dụng và tăng sự thuận tiện trong di chuyển hằng ngày. Với chất liệu kính cường lực trong suốt kết hợp khung inox xước mờ, hệ thống cửa mang lại cảm giác sang trọng, hiện đại và đón ánh sáng tự nhiên tràn ngập không gian phòng khách.
Công trình tại Gò Vấp thể hiện hoàn hảo sự giao thoa giữa thiết kế nội thất đương đại và công nghệ tự động hóa đến từ Hàn Quốc. Từng chi tiết thi công được CASCA chú trọng, đảm bảo độ bền, độ êm và tính an toàn tuyệt đối khi vận hành. Dự án không chỉ mang đến trải nghiệm sống tiện nghi mà còn khẳng định phong cách sống hiện đại và đẳng cấp của gia chủ.
“Gia đình tôi rất hài lòng với chất lượng và phong cách làm việc của CASCA. Từ khâu tư vấn đến lắp đặt đều được thực hiện chuyên nghiệp, nhanh gọn và chính xác. Cửa vận hành rất êm, thiết kế sang trọng, đúng với kỳ vọng của chúng tôi. Đây thực sự là khoản đầu tư xứng đáng cho không gian sống.” - Khách hàng chia sẻ sau khi sử dụng sản phẩm.
Nếu bạn đang tìm kiếm một giải pháp cửa trượt tự động cao cấp, tinh tế, hiện đại và bền bỉ, hãy liên hệ ngay với CASCA Việt Nam để được tư vấn và thi công trọn gói bởi đội ngũ kỹ sư chuyên nghiệp.
Giải pháp cửa tự động CASCA – Dịch vụ chuyên nghiệp, chất lượng hàng đầu
Tại CASCA Việt Nam, chúng tôi mang đến hệ sinh thái giải pháp cửa tự động cao cấp được nhập khẩu chính hãng từ các thương hiệu hàng đầu như KODO, TERAOKA, MICOMDOOR. Mỗi công trình đều được chúng tôi thực hiện theo quy trình khép kín – từ khảo sát, tư vấn, thiết kế cho đến thi công và bàn giao, đảm bảo từng chi tiết đều đạt chuẩn quốc tế về kỹ thuật, an toàn và thẩm mỹ.
Với hơn 10 năm kinh nghiệm trong lĩnh vực cửa tự động, CASCA đã thực hiện hàng nghìn dự án trên khắp cả nước, từ nhà ở dân dụng đến các công trình thương mại và văn phòng cao cấp. Chúng tôi không chỉ cung cấp sản phẩm mà còn mang đến dịch vụ trọn gói toàn diện – bao gồm khảo sát, tư vấn thiết kế, thi công lắp đặt, bảo hành và bảo trì tận nơi. Mỗi dịch vụ đều được triển khai bởi đội ngũ kỹ sư giàu kinh nghiệm và được đào tạo chuyên sâu, đảm bảo mang lại cho khách hàng giải pháp tối ưu, vận hành êm ái và an toàn tuyệt đối.
CASCA cam kết đồng hành cùng khách hàng trong suốt vòng đời sản phẩm. Dù là bảo hành định kỳ, bảo trì sau thi công, hay hỗ trợ kỹ thuật 24/7, chúng tôi luôn sẵn sàng phục vụ nhanh chóng và tận tâm để hệ thống cửa tự động của bạn luôn hoạt động bền bỉ theo thời gian.
Nếu bạn đang tìm kiếm một đơn vị thi công, lắp đặt cửa tự động tại HCM, hãy để CASCA Việt Nam đồng hành cùng bạn trong việc kiến tạo không gian sống hiện đại và thông minh. Liên hệ ngay hôm nay để được tư vấn giải pháp và nhận báo giá ưu đãi nhất!



CASCA Việt Nam – Chi nhánh TP. Hồ Chí Minh
- Địa chỉ: 2 Lê Thị Nho, Phường Trung Mỹ Tây, Quận 12, TP. Hồ Chí Minh
- Hotline: 0903.786.883 / 0937.226.883
- Email: cascavietnam@gmail.com
- Website: https://casca.vn
Dự án cửa kính trượt tự động KODO tại Gò Vấp là minh chứng rõ nét cho năng lực thi công chuẩn mực và dịch vụ chuyên nghiệp của CASCA Việt Nam. Sản phẩm không chỉ đáp ứng nhu cầu tiện nghi mà còn nâng tầm giá trị thẩm mỹ và phong cách sống hiện đại cho gia chủ.
Liên hệ ngay với CASCA Việt Nam để trải nghiệm dịch vụ lắp đặt cửa tự động chính hãng, an toàn, tinh tế và đẳng cấp hàng đầu Việt Nam!
