Ngày 04/09/2025, CASCA Việt Nam hoàn thiện dự án cửa kính trượt tự động KODO 2 cánh cho nhà dân tại 109 Bàu Cát, phường 14, quận Tân Bình, TP.HCM. Công trình sử dụng hệ thống KODO Autodoor – Model T400 (Made in Korea), vận hành bằng cảm biến mắt thần hồng ngoại, mang lại sự tiện nghi, sang trọng và an toàn tối đa cho không gian sống.

Phân tích thiết kế và yêu cầu kỹ thuật riêng của công trình
Căn nhà được thiết kế theo phong cách hiện đại, chú trọng ánh sáng và không gian mở. Gia chủ mong muốn hệ thống cửa sảnh vừa đảm bảo vận hành êm ái, tự động chính xác, vừa mang lại giá trị thẩm mỹ và độ bền lâu dài.
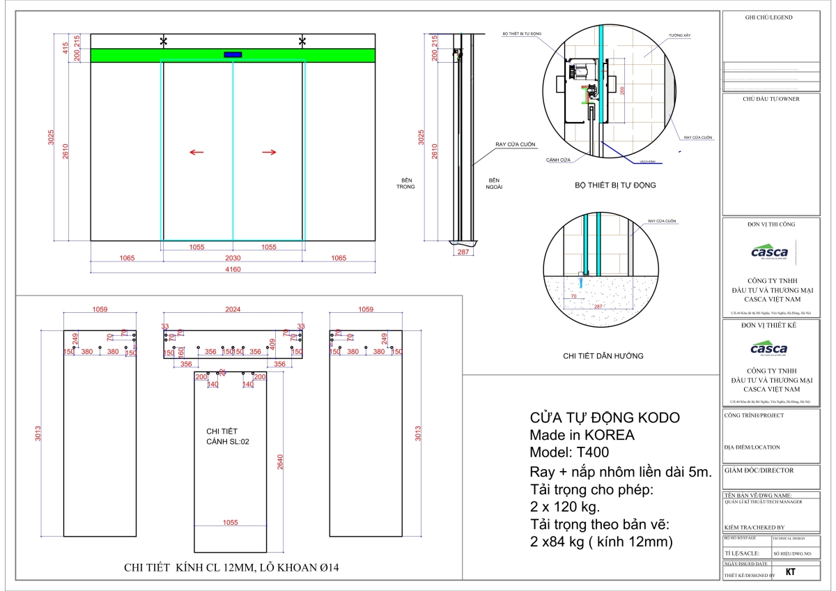
Dựa trên bản vẽ kỹ thuật, CASCA đã đề xuất cấu hình Model KODO T400 – dòng cửa kính trượt tự động chuyên biệt cho nhà ở, với ray nhôm liền dài 5m, tải trọng cho phép 2 x 120kg, kính cường lực 12mm, đảm bảo độ chắc chắn và an toàn tuyệt đối.

Cấu hình kỹ thuật và giải pháp thi công tối ưu
Hệ thống cửa kính tự động được đội ngũ CASCA thiết kế và thi công trọn gói với các chi tiết kỹ thuật sau:
- Kính cường lực 12mm, lỗ khoan Ø14, độ phẳng và độ trong đạt chuẩn châu Âu, chống nứt vỡ khi chịu va chạm.
- Ray nhôm hợp kim đúc nguyên khối dài 5m, chịu tải tốt, bề mặt anod hóa chống oxy hóa, giúp cửa vận hành êm, bền bỉ.
- Motor KODO 100W không chổi than, điều khiển đóng/mở mượt mà, có tính năng tiết kiệm điện và tự ngắt khi quá tải.
- Bộ điều khiển trung tâm thông minh, cho phép tùy chỉnh tốc độ, thời gian giữ cửa mở, tích hợp dễ dàng với hệ thống chuông hình hoặc khóa điện tử.
- Cảm biến mắt thần hồng ngoại đôi, nhận diện chuyển động chính xác trong phạm vi 2–3m, phản hồi tức thì khi có người tiếp cận.
- Bộ ray dẫn hướng và con lăn giảm chấn kép, đảm bảo cửa di chuyển ổn định, không rung, không ồn.
Tất cả linh kiện đều được nhập khẩu chính hãng từ KODO Korea, đạt tiêu chuẩn EN16005 và IEC60335 về an toàn và hiệu suất.



Quy trình thi công và kiểm định chất lượng của CASCA
Công trình được thi công theo quy trình chuẩn CASCA, đảm bảo từng giai đoạn được kiểm định kỹ lưỡng:
- Khảo sát thực tế và phân tích hiện trạng khung bao: kỹ sư tiến hành đo đạc bằng thiết bị laser độ chính xác ±1 mm, kiểm tra độ vuông góc và độ phẳng của khung tường để tính toán kích thước kính, ray và bộ treo. Dữ liệu được nhập vào phần mềm thiết kế để dựng bản vẽ lắp chi tiết.
- Gia cố kết cấu tường và ray: sử dụng thép V mạ kẽm kết hợp bulong nở M8 để tăng khả năng chịu lực kéo, hạn chế rung động khi vận hành; ray nhôm được lắp trên giá đỡ có lớp cao su cách âm nhằm đảm bảo độ cân bằng ±0.5 mm toàn tuyến.
- Lắp đặt motor, bộ điều khiển và cảm biến: tiến hành theo thứ tự – cố định motor lên giá đỡ, đấu nối dây tín hiệu và nguồn điện 220 V, căn chỉnh góc quét cảm biến 80°–90° để đạt độ nhạy tối ưu, đồng thời thiết lập chế độ mở bán phần khi lưu lượng thấp nhằm tiết kiệm năng lượng.
- Chạy thử nghiệm và hiệu chuẩn: thực hiện ít nhất 500 chu kỳ đóng/mở liên tục, đo tốc độ trung bình 0.5 m/s, độ ồn <38 dB; kiểm tra tính năng an toàn đảo chiều khi gặp vật cản ở lực ngưỡng 100–120 N; tinh chỉnh tham số giữ mở (3–7 s) theo yêu cầu gia chủ.
- Nghiệm thu, bàn giao và hướng dẫn vận hành: bàn giao kèm bản vẽ as-built, tài liệu kỹ thuật và lịch bảo trì điện tử. Nhân viên CASCA hướng dẫn trực tiếp quy trình vệ sinh ray, kiểm tra cảm biến định kỳ và cập nhật trạng thái hoạt động lên hệ thống quản lý bảo hành online.
Hệ thống vận hành ổn định với tốc độ đóng/mở 2,8 giây, độ ồn đo được <38dB, và khả năng nhận diện vật cản chính xác 99%.



Giá trị thực tế mang lại cho không gian sống
Việc ứng dụng cửa tự động KODO trong không gian nhà ở mang lại nhiều lợi ích thiết thực:
- Tăng sự tiện nghi: cảm biến mắt thần KODO sử dụng công nghệ hồng ngoại kép nhận diện chính xác trong phạm vi 2–3 m, giúp cửa mở ngay khi người dùng tiến gần. Điều này đặc biệt hữu ích cho gia đình có trẻ nhỏ, người cao tuổi hoặc khi đang mang đồ, đảm bảo việc ra vào hoàn toàn rảnh tay.
- Tối ưu không gian sống: cơ chế trượt song song cho phép tiết kiệm tới 40% diện tích so với cửa mở truyền thống. Bản cánh trượt mỏng 12 mm kết hợp ray âm trần tạo cảm giác liền mạch, mở rộng tầm nhìn và tối đa hóa ánh sáng tự nhiên cho không gian sảnh.
- An toàn tuyệt đối: hệ thống cảm biến được hiệu chuẩn tự động dừng ở ngưỡng lực 100 N, tránh va chạm với người dùng. Khi mất điện, cửa có thể mở tay bằng cơ cấu fail-safe để đảm bảo lối thoát hiểm. Các linh kiện đều đạt chuẩn EN16005, bảo đảm an toàn cơ điện theo tiêu chuẩn châu Âu.
- Tính thẩm mỹ và độ hoàn thiện cao: khung nhôm định hình được anod hóa chống xước, kết hợp nắp che inox hairline đồng bộ nội thất. Bề mặt kính trong suốt tạo sự sang trọng và đồng nhất với kiến trúc nhà phố hiện đại.
- Hiệu quả năng lượng vượt trội: cảm biến điều khiển thông minh giúp cửa đóng nhanh và kín, giảm thất thoát nhiệt qua khe hở. Cơ chế standby chỉ tiêu thụ 3–5 W, kết hợp với giữ nhiệt tốt của kính cường lực giúp tiết kiệm điện điều hòa lên đến 20–25%.
CASCA Việt Nam – Đơn vị tiên phong trong giải pháp cửa tự động dân dụng
Với hơn 10 năm kinh nghiệm, CASCA Việt Nam khẳng định vị thế là thương hiệu hàng đầu trong lĩnh vực cửa tự động dân dụng. Không chỉ chú trọng chất lượng sản phẩm, CASCA còn cung cấp dịch vụ đồng bộ từ tư vấn – thiết kế – thi công – bảo hành.
Điểm khác biệt của CASCA trong từng công trình:
- Đội ngũ kỹ sư chuyên sâu: được đào tạo bài bản về cơ điện tử, đảm bảo độ chính xác trong từng chi tiết lắp đặt.
- Quy trình bảo trì chủ động: áp dụng hệ thống ticket điện tử, giúp theo dõi lịch sử hoạt động của từng công trình.
- Kho linh kiện chính hãng toàn quốc: hỗ trợ bảo hành nhanh trong 24 giờ, rút ngắn thời gian khắc phục sự cố.
- Tư vấn giải pháp tích hợp: liên kết cửa tự động với hệ thống kiểm soát ra vào, chuông hình hoặc nhận diện khuôn mặt, mang lại trải nghiệm sống thông minh và an toàn.
CASCA – thương hiệu tiên phong trong lĩnh vực cửa trượt tự động, nơi công nghệ và thiết kế hòa quyện, tạo nên giá trị khác biệt cho từng công trình nhà ở hiện đại.
Liên hệ CASCA Việt Nam ngay hôm nay để được tư vấn giải pháp cửa tự động đóng mở phù hợp nhất cho không gian của bạn.
CÔNG TY TNHH ĐẦU TƯ VÀ THƯƠNG MẠI CASCA VIỆT NAM
- VPHN: U3-L44, KĐT Đô Nghĩa, Yên Nghĩa, Hà Đông – Hotline: 0965.911.566 / 0964.776.883
- VPSG: 2 Lê Thị Nho, Trung Mỹ Tây, Quận 12 – Hotline: 0903.786.883 / 0937.226.883
- VPĐN: 31 Trừ Văn Thố, Hòa Thọ Đông, Cẩm Lệ – Hotline: 0964.946.883
- Email: cascavietnam@gmail.com
- Website: https://casca.vn
