Dự án được hoàn thiện ngày 03/06/2024 tại KCN Mỹ Xuân A, hạng mục cửa kính trượt tự động KODO, bộ 2 cánh, lắp đặt tại sảnh chính công ty San Fang.

Bối cảnh và yêu cầu thực tế
Sảnh công ty là không gian đầu tiên khách hàng tiếp xúc, nên việc lựa chọn cửa tự động văn phòng phù hợp giúp tăng hình ảnh chuyên nghiệp của doanh nghiệp.
Sảnh công ty là khu vực thể hiện hình ảnh thương hiệu và là nơi có mật độ người ra vào cao. Vì vậy, Công ty San Fang yêu cầu hệ thống cửa phải đáp ứng ba yếu tố: vận hành tự động ổn định, an toàn cho người sử dụng, và mang tính thẩm mỹ cao phù hợp không gian đại sảnh.
Đội ngũ kỹ thuật CASCA Việt Nam đã lựa chọn cửa kính trượt tự động KODO – thương hiệu Hàn Quốc nổi tiếng về độ bền và độ chính xác – để thi công cho hạng mục này.

Giải pháp kỹ thuật CASCA triển khai
Đây là bước trọng tâm trong quá trình thi công, nơi đội ngũ CASCA áp dụng các tiêu chuẩn kỹ thuật tương tự như những dự án đã thực hiện thành công.
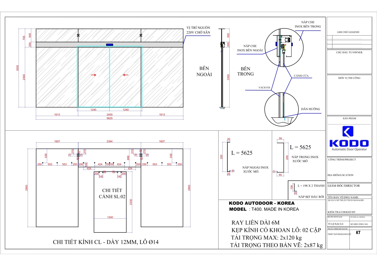
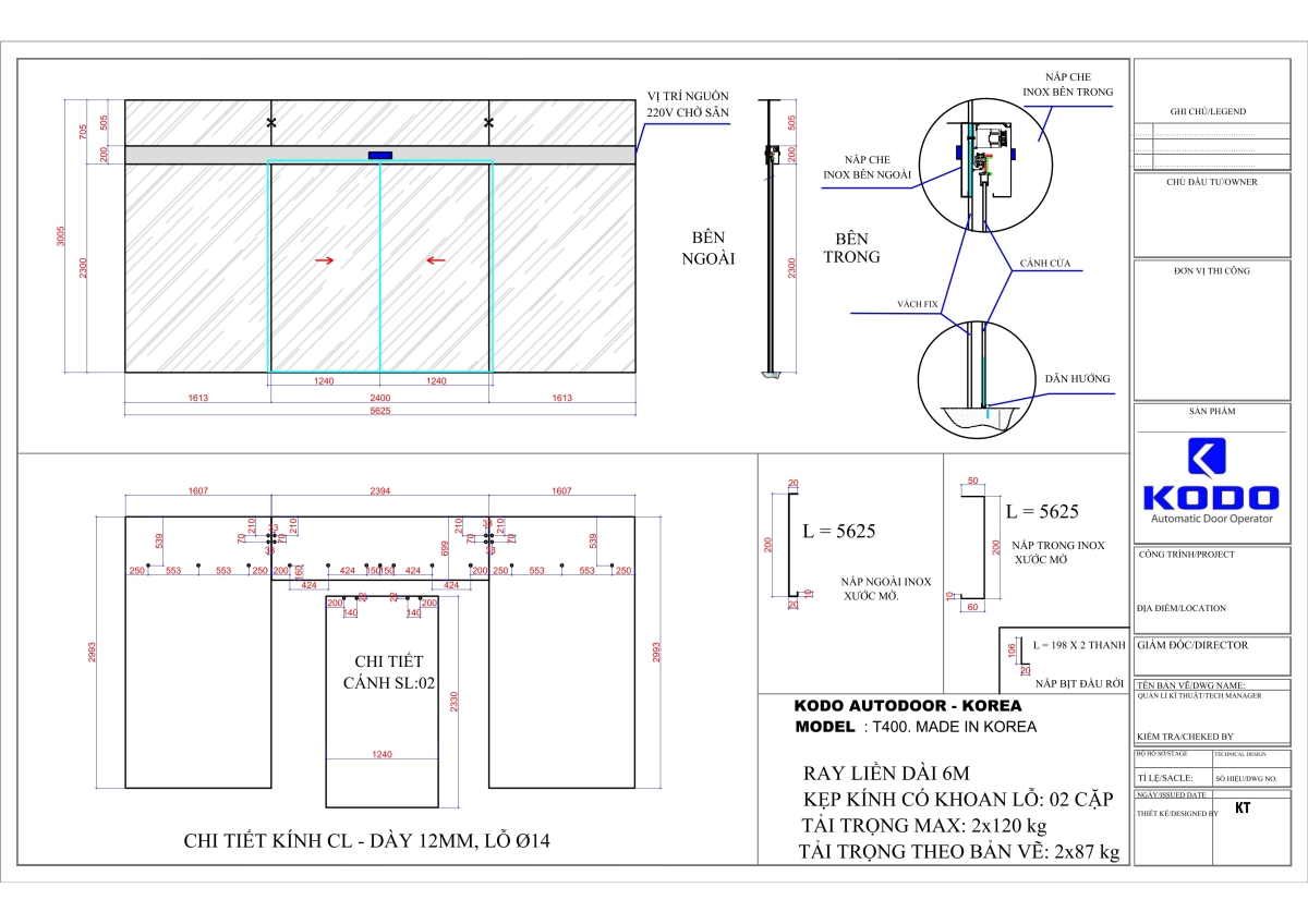
Cấu hình cửa được thiết kế gồm:
- Cánh kính cường lực 12mm trong suốt, khung nhôm ẩn, giúp mở rộng tầm nhìn và tăng tính sang trọng.
- Bộ ray KODO chất liệu hợp kim nhôm đúc nguyên khối, giảm rung và vận hành êm ái.
- Động cơ không chổi than KODO 100W, kết hợp cảm biến radar đôi, nhận diện chính xác hướng di chuyển.
- Bộ điều khiển trung tâm thông minh cho phép chỉnh thời gian trễ đóng/mở và chế độ tiết kiệm điện.
Ngoài ra, hệ thống được tích hợp chức năng mở bằng nút bấm và cảm biến mắt thần kép, phù hợp với lưu lượng di chuyển lớn tại khu vực sảnh.
Giải pháp này tương tự các dòng cửa kính tự động đang được CASCA triển khai tại nhiều tòa nhà văn phòng và trung tâm thương mại.



Tính năng nổi bật và hiệu quả sử dụng
So với các dòng cửa tự động KODO khác, phiên bản sử dụng tại San Fang mang lại hiệu quả tối ưu cả về độ êm và độ an toàn trong vận hành.
Hệ thống cửa kính trượt tự động KODO không chỉ là một thiết bị mở đóng tự động, mà còn là sự kết hợp tinh tế giữa công nghệ, thẩm mỹ và độ an toàn. Phần dưới đây sẽ giúp bạn hiểu rõ hơn những ưu điểm nổi bật khiến sản phẩm này trở thành lựa chọn hàng đầu cho công trình San Fang.
- Vận hành êm tuyệt đối: độ ồn đo được dưới 50dB – phù hợp không gian tiếp khách.
- Cảm biến chính xác cao: phản ứng nhanh, hạn chế tình trạng mở sai hoặc đóng sớm.
- An toàn tuyệt đối: cảm biến chống kẹp, cơ chế dừng khẩn cấp khi gặp vật cản.
- Thẩm mỹ tinh tế: kính trong suốt, khung nhôm mảnh, tạo cảm giác không gian mở và hiện đại.
- Tiết kiệm năng lượng: cửa tự động đóng kín khi không có người, hạn chế thất thoát nhiệt cho khu vực lễ tân có điều hòa.



Lợi ích đối với doanh nghiệp
Những tính năng trên không chỉ mang lại trải nghiệm vận hành tối ưu mà còn tạo ra nhiều giá trị thực tế cho doanh nghiệp. Dưới đây là các lợi ích nổi bật được ghi nhận sau khi dự án hoàn thành:
- Tăng trải nghiệm đón tiếp chuyên nghiệp, gây ấn tượng với khách hàng và đối tác.
- Tối ưu lưu thông, giúp nhân viên và khách ra vào dễ dàng trong giờ cao điểm.
- Giữ môi trường sảnh sạch và mát, phù hợp tiêu chuẩn xanh trong thiết kế công trình hiện đại.
- Đảm bảo an toàn vận hành lâu dài, dễ bảo trì và thay thế linh kiện chính hãng.
Với thiết kế mở trượt hai cánh, hệ thống cửa kính tự động KODO của CASCA không chỉ là thiết bị vận hành, mà còn là giải pháp kiến trúc thông minh cho doanh nghiệp hiện đại.
Dịch vụ và cam kết CASCA Việt Nam
Bên cạnh việc cung cấp giải pháp kỹ thuật, CASCA còn cung cấp dịch vụ hậu mãi chuyên nghiệp, tương tự các gói bảo trì cửa tự động giúp hệ thống vận hành bền bỉ lâu dài.
CASCA cung cấp giải pháp trọn gói từ khảo sát – thiết kế – thi công – bảo hành, đảm bảo tiến độ và chất lượng kỹ thuật cao nhất.
- Bảo hành: 24 tháng.
- Bảo trì định kỳ: 6 tháng/lần miễn phí trong năm đầu.
- Phụ kiện thay thế: chính hãng KODO, có sẵn tại kho.
- Hỗ trợ kỹ thuật 24/7 qua hotline trên toàn quốc.
Liên hệ ngay hôm nay để CASCA giúp bạn nâng cấp hệ thống cửa tự động, mang đến không gian sang trọng và vận hành hiệu quả hơn.
CÔNG TY TNHH ĐẦU TƯ VÀ THƯƠNG MẠI CASCA VIỆT NAM
- VPHN: U3-L44, KĐT Đô Nghĩa, Yên Nghĩa, Hà Đông – Hotline: 0965.911.566 / 0964.776.883
- VPSG: 2 Lê Thị Nho, Trung Mỹ Tây, Quận 12 – Hotline: 0903.786.883 / 0937.226.883
- VPĐN: 31 Trừ Văn Thố, Hòa Thọ Đông, Cẩm Lệ – Hotline: 0964.946.883
- Email: cascavietnam@gmail.com
- Website: https://casca.vn
